Vinding og Mølholm / Afdeling 11

Villaerne i Vinding og Mølholm (Kirsebærvej, Mindevej, Nyvej, Rønsvej, Teglværksvej og Vindingvej)

– Klassiske villaer med charme og udsigt

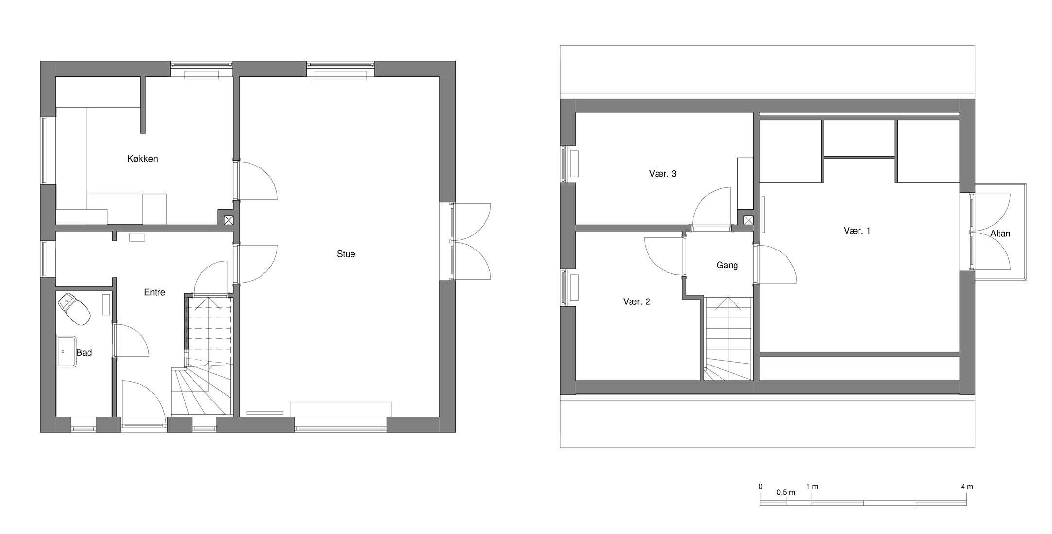
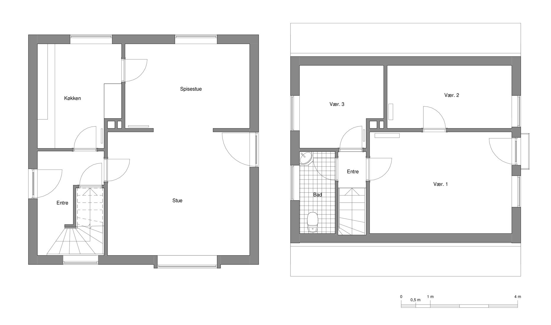
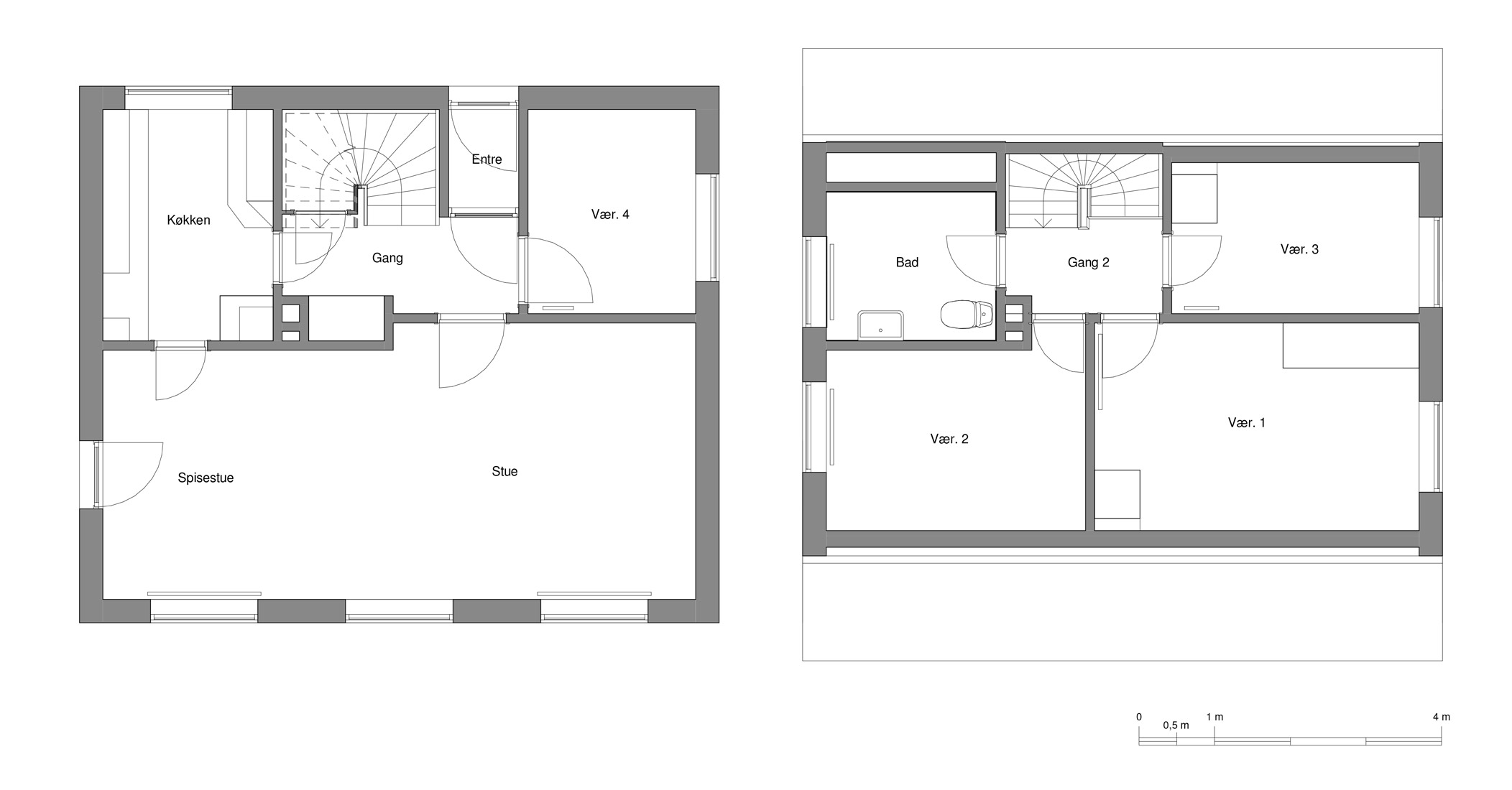
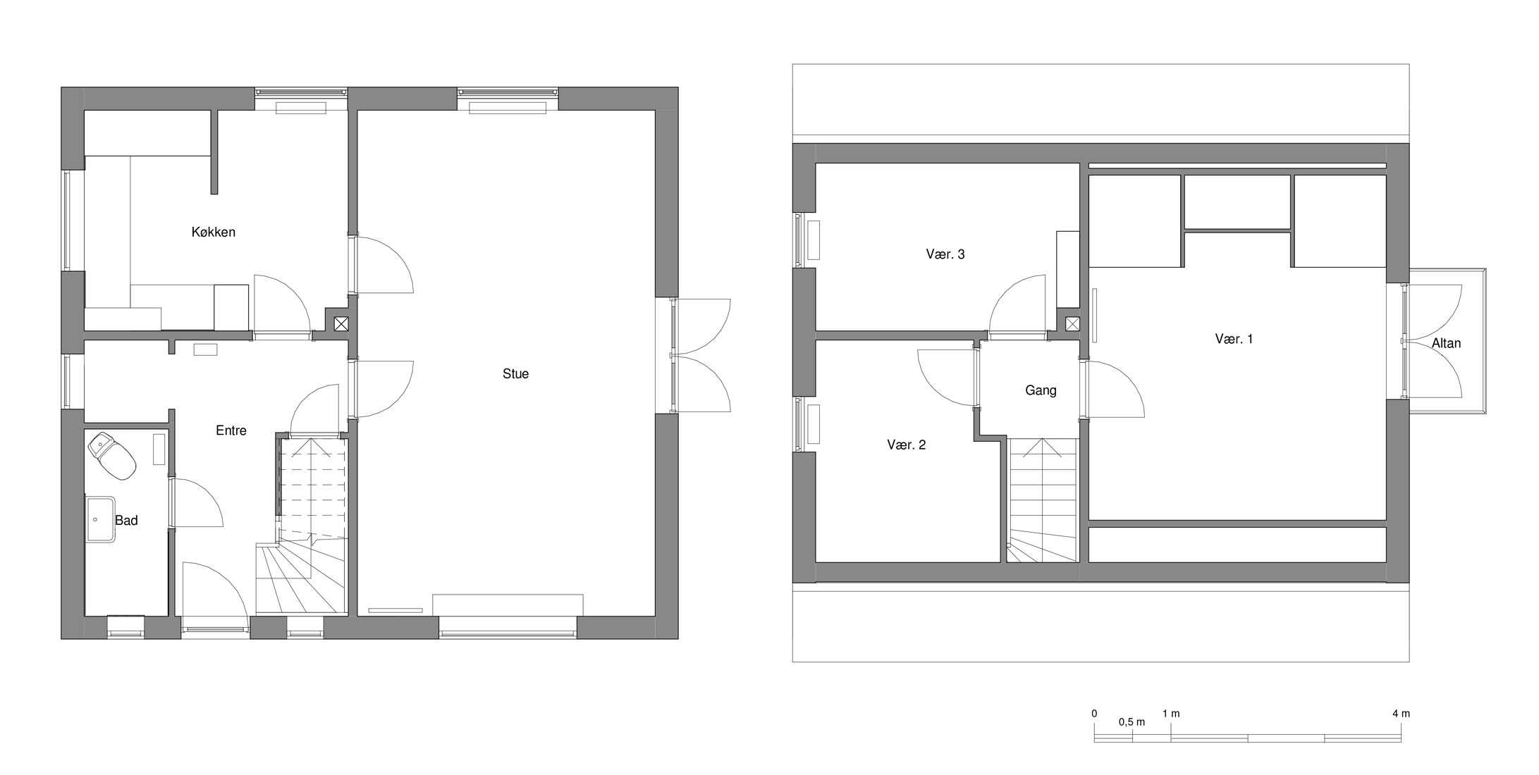
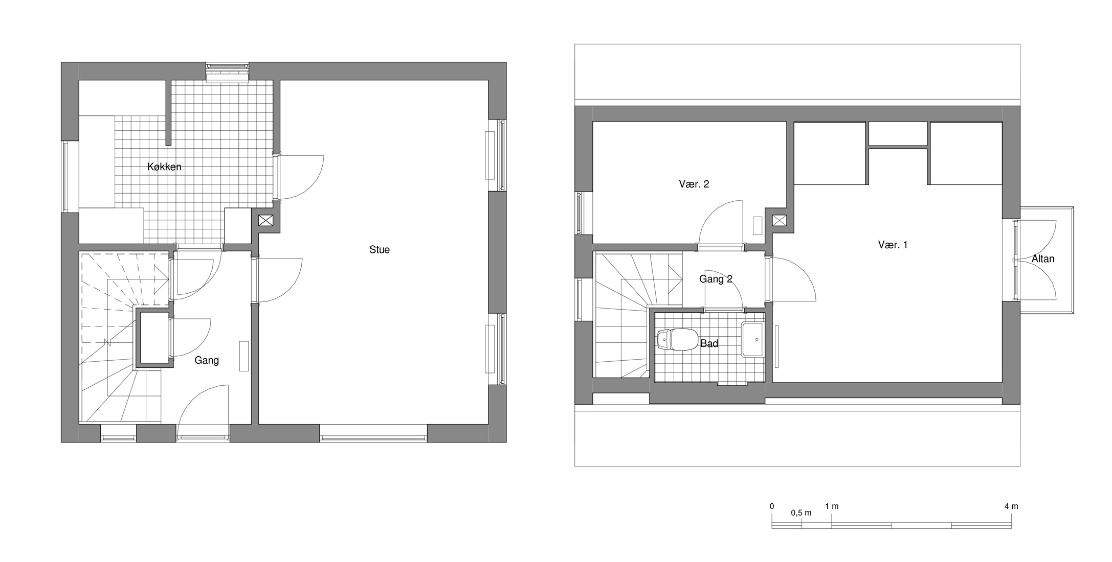
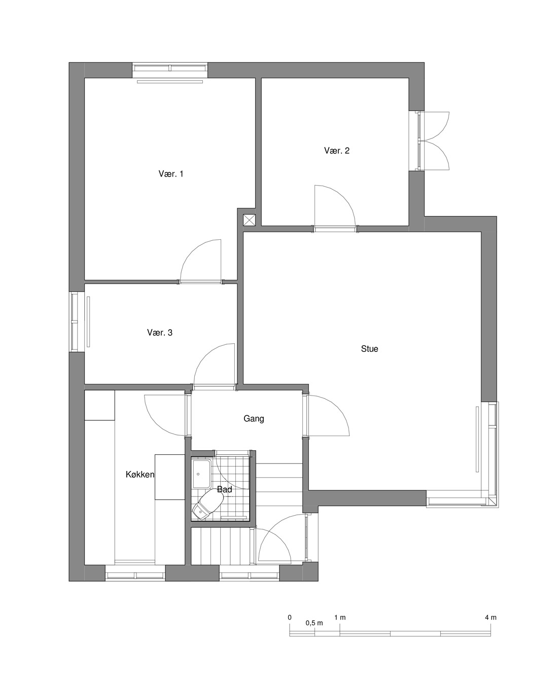
I Vejles naturskønne kvarterer Vinding og Mølholm finder du rummelige villaer i røde eller gule sten, alle med egen have og ofte med carport eller udsigt over fjord og skov. Boligerne har fyrretræsgulve, funktionelle køkkener med spiseplads og elementer fra HTH eller lignende, samt mindre badeværelser med fliser og vindue til udluftning.

Flere af husene har kælder (ikke til beboelse), men med gode disponible rum og mulighed for vaskemaskine og tørretumbler. Nogle boliger har også fransk altan eller adgang til have direkte fra stuen. Eventuelle manglende installationer afholdes af lejer.

Forbrug: Vand betales som aconto via Domea. El og varme afregnes direkte med forsyningsselskab.

Nærområdet

– Natur, hverdag og kultur i perfekt balance

Boligerne ligger tæt på både skov, fjord og Vejle centrum. I nærområdet findes dagligvarebutikker, skoler, daginstitutioner og et bredt udvalg af sportsfaciliteter. Vejle byder på både naturoplevelser, kultur, shopping og gode transportforbindelser – alt inden for kort afstand.

KLIK HERUNDER FOR AT FÅ MERE INFORMATION OM BOLIGERNE

TV/BREDBÅND
Ja
DEPOT/KÆLDERRUM
Ja
FESTLOKALE
Ja
HUSDYR
Ja
VASKERI
Ja
TERASSE / ALTAN
Ja
LADESTANDER
Nej
GARAGE / PARKERING
Nej / Ja
HVIDEVARE
Ja
ELEVATOR
Nej
BEBOERDEMOKRATI
Alle har stemmeret
AntalRumArealHuslejeIndskudPlantegning
1383 m2Fra 6.72216.472Plantegning_90
14100 m2Fra 7.71513.726Plantegning_90
15104 m2Fra 8.28712.288Plantegning_90
15104 m2Fra 8.32812.474Plantegning_90
45108 m2Fra 8.18615.579Plantegning_90
15110 m2Fra 8.02112.825Plantegning_90