Tværvej / Afdeling 51

Etplansrækkehuse med bryggers
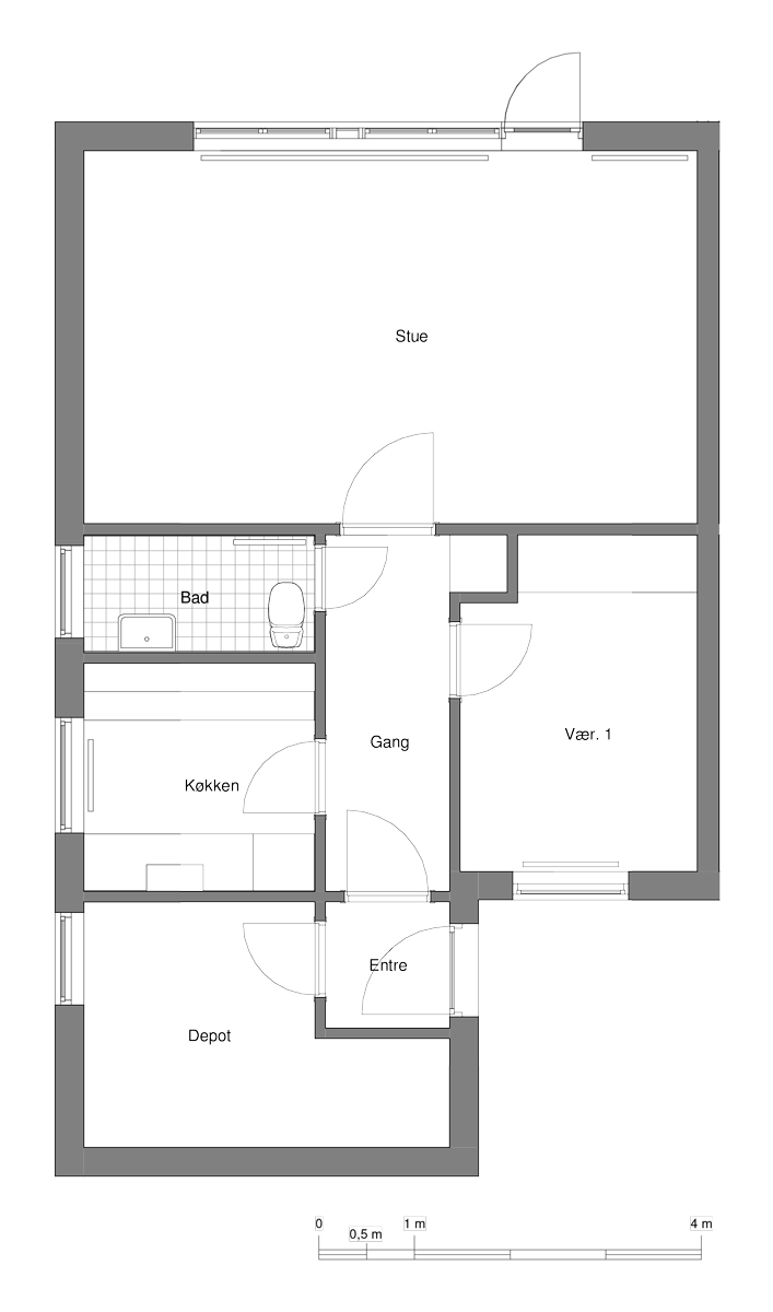
Centralt i Egtved ligger disse etplansrækkehuse fra 1915. Boligerne har rummelige, separate køkkener med køle-fryseskab, komfur og emhætte samt mulighed for både spiseplads og opvaskemaskine. Badeværelserne er lyse med bruseområde og vindue. Der er bryggers og indbyggede skabe, som giver god opbevaringsplads. Til boligerne hører egen have og terrasse, og det er tilladt at holde én hund eller én kat.

Nærområdet

Skøn by med mange muligheder
Egtved byder på gode indkøbsmuligheder, offentlig transport og et aktivt byliv. Naturen er tæt på, blandt andet ved Egtved Skov, som ligger ca. 1,5 km fra boligerne.

KLIK HERUNDER FOR AT FÅ MERE INFORMATION OM BOLIGERNE

TV/BREDBÅND
Ja
DEPOT/KÆLDERRUM
Ja
FESTLOKALE
Nej
HUSDYR
Ja
VASKERI
Nej
TERASSE / ALTAN
Ja
LADESTANDER
Nej
GARAGE / PARKERING
Ja/ Ja
HVIDEVARE
Ja
BEBOERDEMOKRATI
Alle har stemmeret

Tegningerne er ikke målfaste og kan være spejlvendte

AntalRumArealHuslejeIndskudPlantegning
2269 m25.27415.732Plantegning_90