Starupvej / Afdeling 54

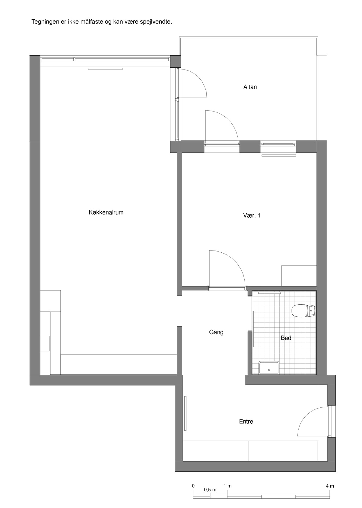
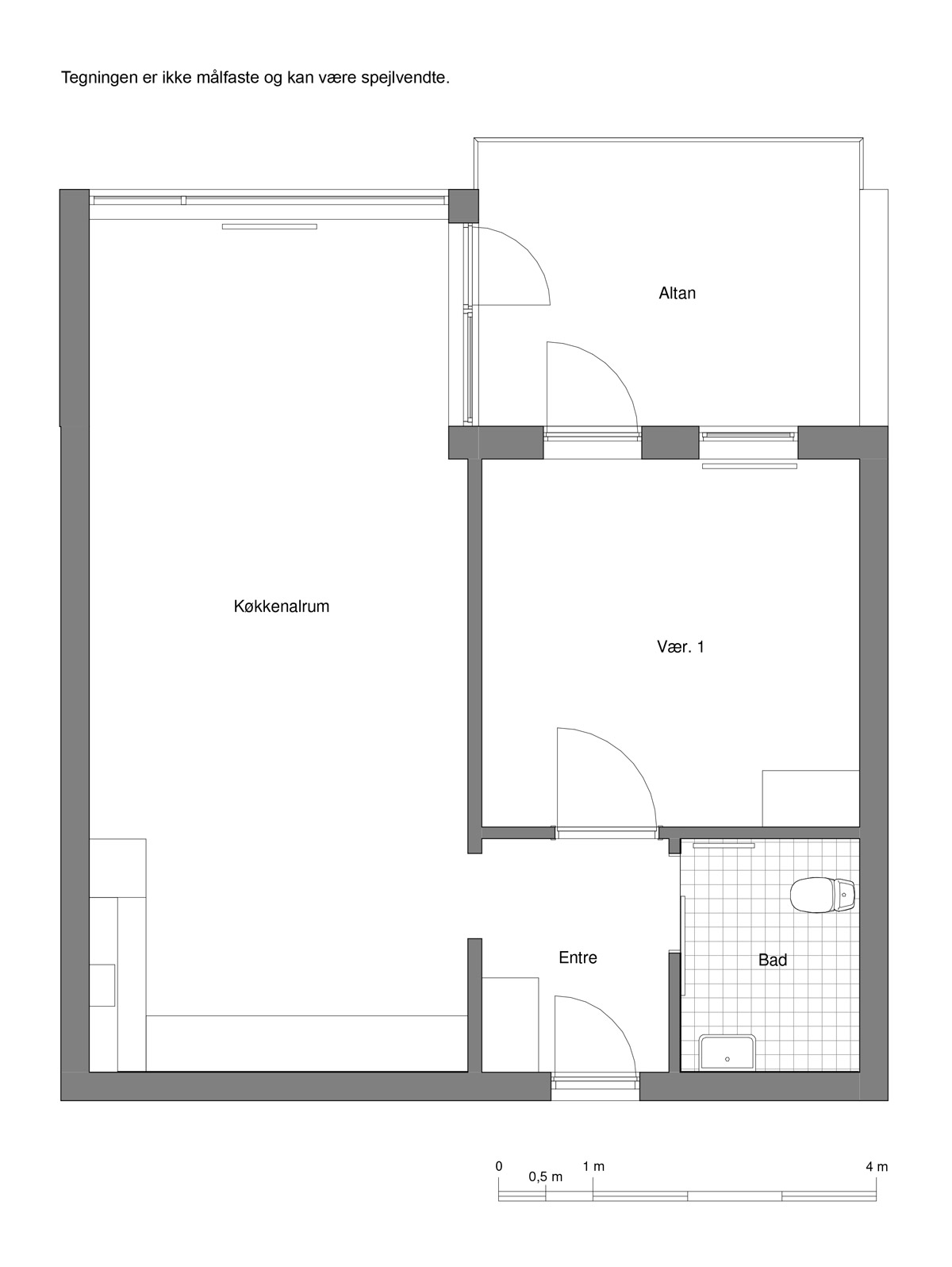
Rækkehuse og lejligheder med hvidt HTH-køkken (2006), komfur, emhætte og køle-fryseskab. Plads til opvaskemaskine, vaskemaskine i køkken eller bryggers. Badeværelser med lysegråt eller rødbrunt klinke-/linoleumsgulv. Fælles vaskeri tilknyttet, og to boliger har eget bryggers. Nogle boliger har altan fra 2010-renovering.

Nærområde: Fredeligt landsbymiljø med grønne fællesarealer, fælleshus, kælderrum/skur og parkering. Føniksborgskoven som nabo, under 1 km til skole, børnehave og dagligvarebutik. Busforbindelse til Kolding og Vejle.

KLIK HERUNDER FOR AT FÅ MERE INFORMATION OM BOLIGERNE

TV/BREDBÅND
Ja
DEPOT/KÆLDERRUM
Nej
FESTLOKALE
Nej
HUSDYR
Ja
VASKERI
Nej
TERASSE / ALTAN
Ja
LADESTANDER
Nej
GARAGE / PARKERING
Nej / Ja
HVIDEVARE
Nej
BEBOERDEMOKRATI
Alle har stemmeret

Tegningerne er ikke målfaste og kan være spejlvendte

AntalRumArealHuslejeIndskudPlantegning
2275 m26.51717.324Plantegning_90
1276 m26.61017.324Plantegning_90
1276 m26.66917.324Plantegning_90
2278 m26.70117.324Plantegning_90
1384 m26.90422.204Plantegning_90
1285 m27.32717.324Plantegning_90
1285 m27.35917.324Plantegning_90
13107 m28.51017.324Plantegning_90
13107 m28.69424.644Plantegning_90