Skræddervænget / Afdeling 62

Boligerne på SKRÆDDERVÆNGET i Smidstrup

Rækkehuse med bryggers i roligt kvarter
Disse étplans rækkehuse i røde mursten ligger i den nordlige del af Smidstrup, tæt på grønne områder og åbent landskab. Husene er opført i to omgange: lige numre i 1986 og ulige numre i 1990, hvilket giver forskelle i udseende og indretning. Alle boliger har eget skur, loftsopbevaring og privat have, som lejer selv vedligeholder. Der er busstop 50 meter væk og dagligvarebutik i gåafstand.

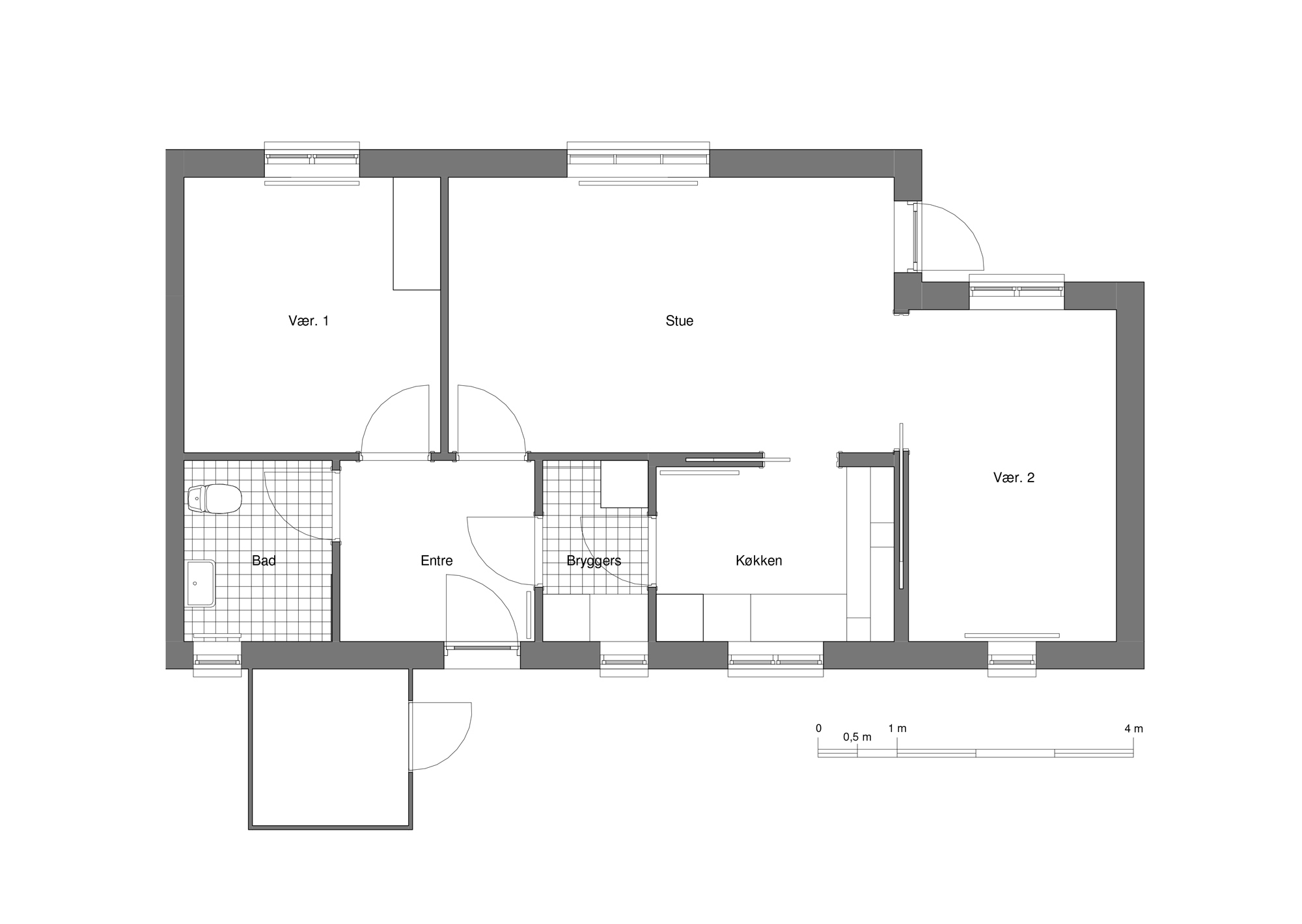
Skræddervænget – lige numre
Nr. 18 og 20 har separat køkken med spiseplads, mens øvrige køkkener er åbne mod stuen. Alle har nedfældet bordkomfur, indbygningsovn, køle-fryseskab, emhætte og installation til opvaskemaskine. Badeværelserne har fliser, gulvvarme og plads til vaskemaskine og kondenstørretumbler. Boligerne har bryggers.

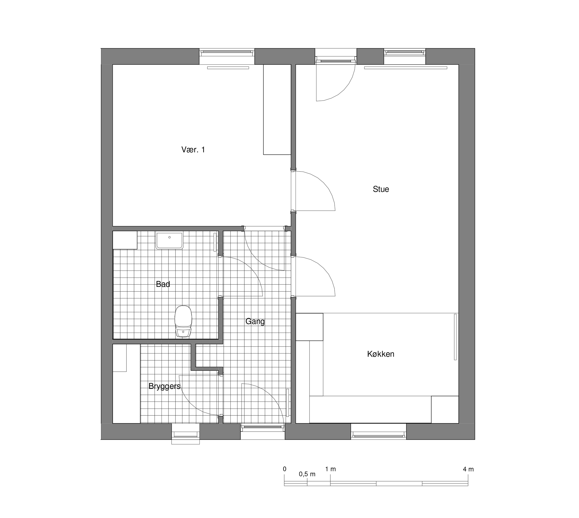
Skræddervænget – ulige numre
Her ligger køkkenet som regel separat med plads til lille spisebord, dog er nr. 23 med åbent køkken. Køkkenet har komfur, køle-fryseskab og emhætte, og flere boliger har fået moderniseret til nedfældede kogeplader og indbygningsovn. Badeværelserne har fliser og gulvvarme. Alle boliger har bryggers.

Nærområde Smidstrup
Rolig landsby mellem Vejle og Kolding
Smidstrup er et aktivt lokalsamfund med skole, daginstitution, idrætsfaciliteter, Smidstruphallen og dagligvarebutik. Her er ro og natur tæt på større byer.

Særlige kriterier
Boligerne er ældreboliger og visiteres via kommunen.

KLIK HERUNDER FOR AT FÅ MERE INFORMATION OM BOLIGERNE

TV/BREDBÅND
Ja
DEPOT/KÆLDERRUM
Ja
FESTLOKALE
Ja
HUSDYR
Ja
VASKERI
Ja
TERASSE / ALTAN
Ja
LADESTANDER
Nej
GARAGE / PARKERING
Nej / Ja
HVIDEVARE
Ja
BEBOERDEMOKRATI
Alle har stemmeret
AntalRumArealHuslejeIndskudPlantegning
2262,4 m2Fra 5.31214.476Plantegning_90
2262,4 m2Fra 5.31214.476Plantegning_90
2266,7 m2Fra 4.76215.474Plantegning_90
2266,7 m2Fra 4.76215.474Plantegning_90
1376,3 m2Fra 6.50517.701Plantegning_90
1379,8 m2Fra 5.69818.513Plantegning_90
1379,8 m2Fra 5.69818.513Plantegning_90