Rønnevang / Afdeling 03

BOLIGERNE PÅ RØNNEVANG

Hyggelige boliger i smuk natur ved Vejle fjord
I rolige og smukke naturomgivelser tæt på Gauerslund skov og Vejle fjord og ca. 10 km fra Vejle og Fredericia, ligger Brejning, hvor Domea Børkop, afd. 3 tilbyder fine rækkehuse og lejligheder i lave etagebyggerier.Nærområdet

Natur og byliv tæt på hinanden

Beliggende i gåafstand til Brejnings bymidte, dagligvarebutikker, skole, institutioner, idrætscenter og golfbane. Lystbådehavn og strand ligger kun 1,5 km væk. Busforbindelse findes lige uden for døren, og togstationen ligger ca. 1 km fra boligen.

KLIK HERUNDER FOR AT FÅ MERE INFORMATION OM BOLIGERNE

TV/BREDBÅND
Ja
DEPOT/KÆLDERRUM
Ja
FESTLOKALE
Ja
HUSDYR
Ja
VASKERI
Ja
TERASSE / ALTAN
Ja
LADESTANDER
Nej
GARAGE / PARKERING
Nej / Ja
HVIDEVARE
Ja
ELEVATOR
Nej
BEBOERDEMOKRATI
Alle har stemmeret
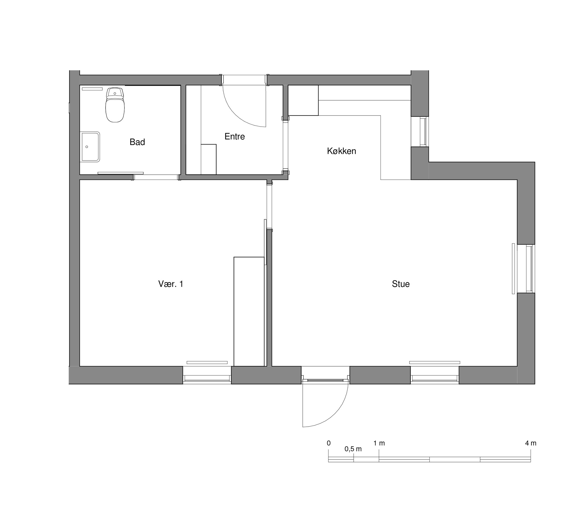
AntalRumArealHuslejeIndskudPlantegning
1262 m2Fra 4.77814.384Plantegning_90
1262 m2Fra 4.77814.384Plantegning_90
1262 m2Fra 4.77814.384Plantegning_90
1262 m2Fra 4.77814.384Plantegning_90
1262 m2Fra 4.77814.384Plantegning_90
1262 m2Fra 4.77814.384Plantegning_90
1267 m2Fra 5.19515.544Plantegning_90
1267 m2Fra 5.19515.544Plantegning_90
1267 m2Fra 5.19515,644Plantegning_90
1267 m2Fra 5.19515.544Plantegning_90