Ringvejen / Afdeling 07

Studieboliger tæt på uddannelse og fællesskab

Boligerne på Ringvejen / Højagerkollegiet
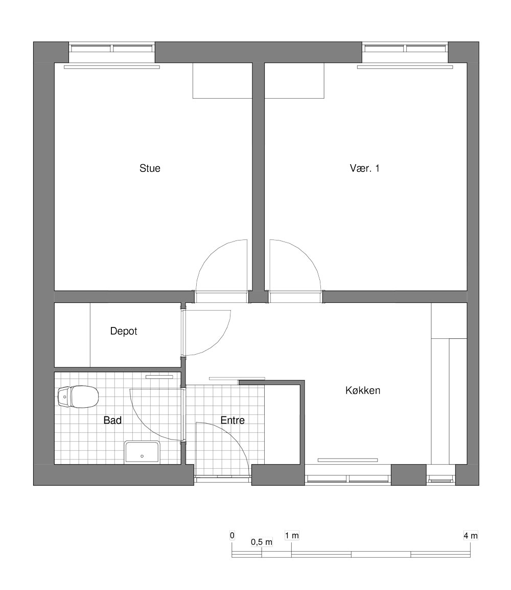
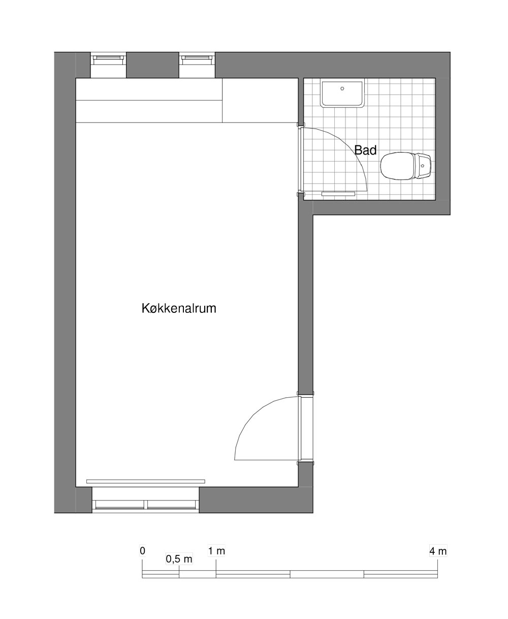
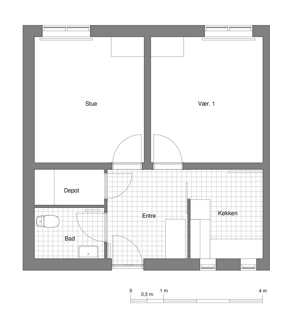
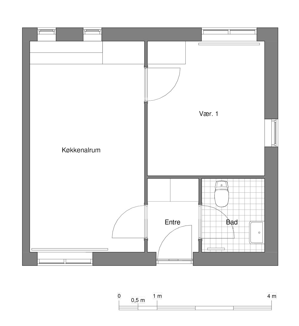
Studieboligerne har faste skabe og enten åbent eller separat køkken med hvide Svane-elementer. Køkkenerne er udstyret med køle-fryseskab, komfur og emhætte, og flere blev renoveret i 2010. Badeværelserne er funktionelle med klinkegulv og vægbeklædning. Alle boliger har adgang til skur – enten privat eller delt.

Afdelingen – aktivt kollegieliv
Kollegierne består af etplansrækkehuse i røde mursten og ligger i den sydlige og vestlige del af Jelling.
Her findes fælleslokaler, fællesvaskeri og hyggelige udearealer med grill, bålplads og strandvolleybane. Det sociale fællesskab er stærkt og understøttes af fælles aktiviteter og sociale medier. Internet kan tilkøbes via lokal udbyder. Boligerne er ikke handicapindrettede, men individuelle løsninger kan aftales.

Husdyr
I 2-rumsboligerne er det tilladt at holde én hund (maks. 40 kg) eller én kat.

Nærområdet – nem hverdag for studerende
Kollegierne ligger tæt på University College Lillebælt, og bus og tog giver nem adgang til både Vejle og Jelling.
I nærheden finder du caféer, kulturtilbud samt grønne områder ved Fårup Sø og den nærliggende golfbane.

KLIK HERUNDER FOR AT FÅ MERE INFORMATION OM BOLIGERNE

TV/BREDBÅND
Ja
DEPOT/KÆLDERRUM
Ja
FESTLOKALE
Ja
HUSDYR
Ja
VASKERI
Ja
TERASSE / ALTAN
Nej
LADESTANDER
Nej
GARAGE / PARKERING
Nej / Ja
HVIDEVARE
Ja
BEBOERDEMOKRATI
Alle har stemmeret

Tegningerne er ikke målfaste og kan være spejlvendte

AntalRumArealHuslejeIndskudPlantegning
26127 m22.3828.500Plantegning_90
8127 m22.3828.500Plantegning_90
8241 m23.63712.000Plantegning_90
3254 m24.59515.000Plantegning_90
10254 m24.78515.000Plantegning_90
8254 m24.59515.000Plantegning_90