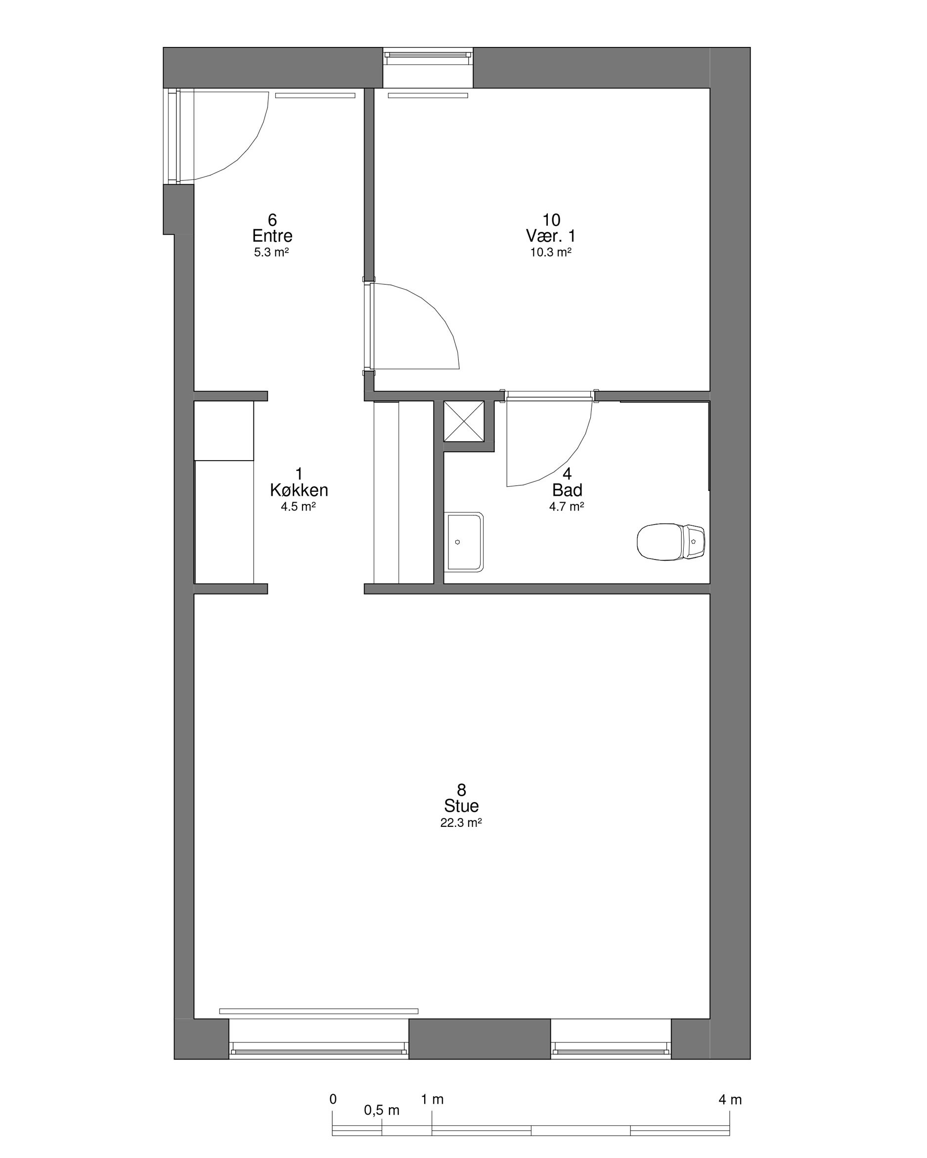
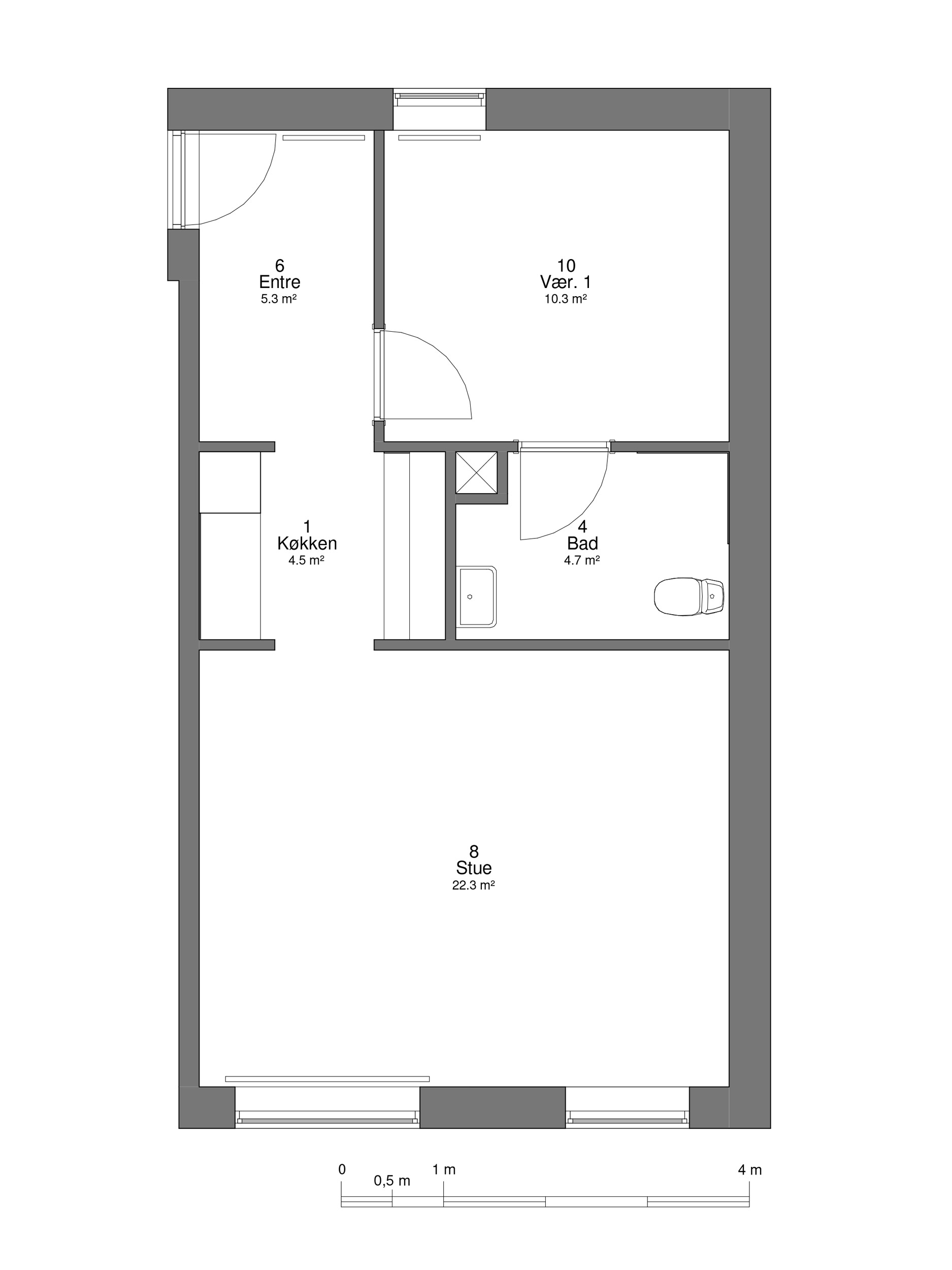
Boligtype Lejlighed
Værelser 2
Møbleret Nej
Husdyr tilladt Ja
Seniorvenlig Ja
Altan/Terrasse Ja
Opvaskemaskine Nej
Ladestander Nej
Energimærke Ikke angivet
Størrelse 64-75 m²
Etage Stuen – 3. sal
Delevenlig Nej
Seniorvenlig Ja
Elevator Ja
Kun for studerende Nej
Parkering Ja
Vaskemaskine/tørretumbler Nej
Fællesvaskeri Ja
Lejeperiode Ubegrænset
Månedlig leje Fra 7.063 kr.
Indskud Fra 21.024 kr
Indflytningspris Fra 7.613 kr.
Ledig fra Straks
Aconto varme Direkte til forsynlingsselskab
Forudbetalt hussleje Fra 7.063 kr.













