Overgårdsvej / Afdeling 51

Etplans- og toplansrækkehuse med opbevaringsplads
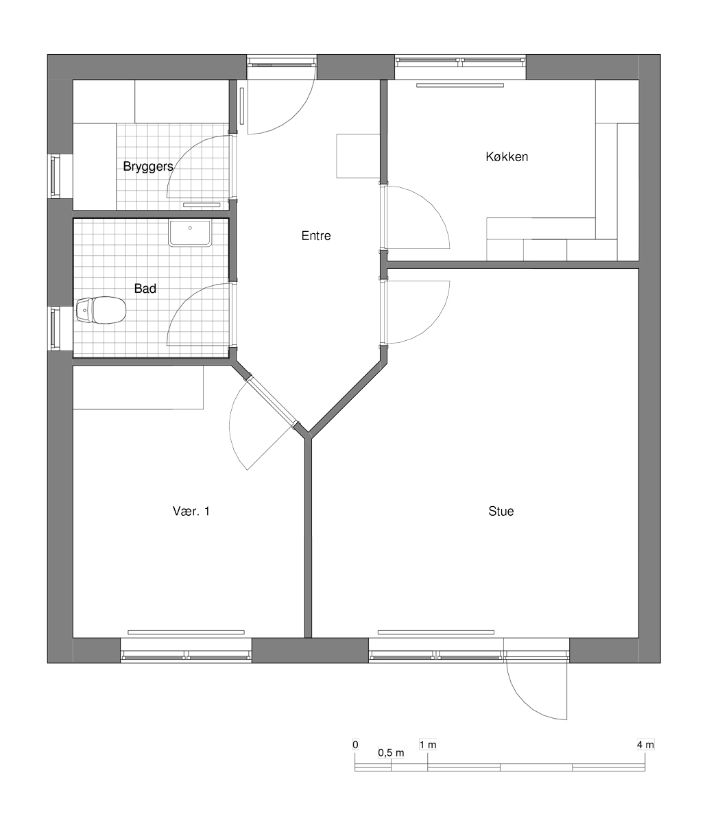
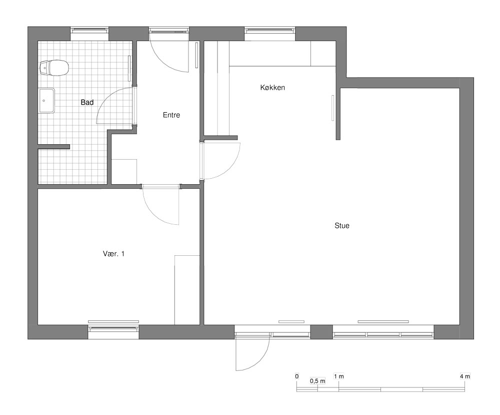
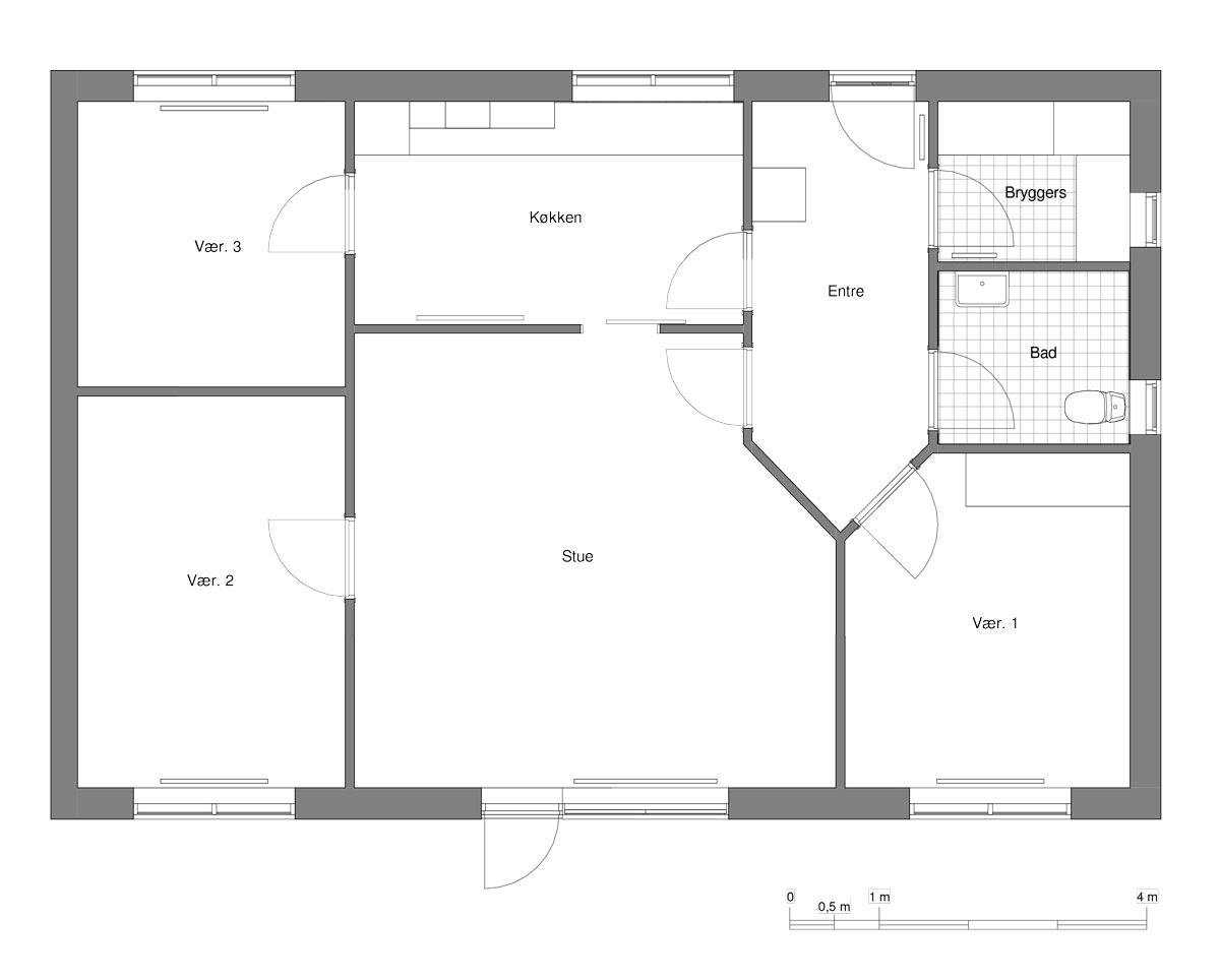
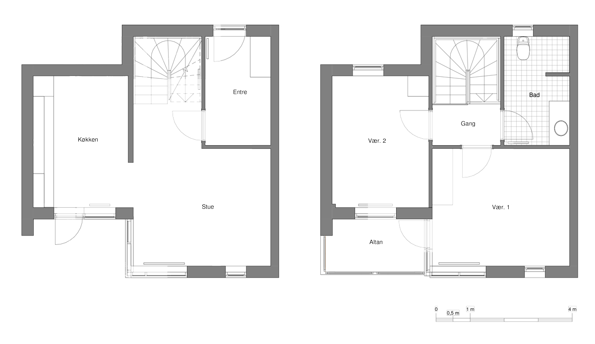
Centralt i Egtved ligger disse et- og toplansrækkehuse fra 1983–1998. Boligerne har indbyggede skabe, cykelskur, private terrasser og adgang til hyggelige, grønne fællesarealer med bordbænkesæt. Køkkenerne er i bøgetræ med vinylgulv, køleskab med frostboks, kogeplader og emhætte. Badeværelserne har enten beige vinylgulve eller lysegrå fliser, bruseniche, vindue og gulvvarme (afhængigt af nummerering).

Nærområdet

Skøn by med aktiviteter for enhver
Egtved byder på indkøb, daginstitutioner og offentlig transport i gåafstand. Midt i byen står Eventyrtræet, en skulptur inspireret af H. C. Andersens figurer. Naturen er tæt på, fx Egtved Skov 1,5 km væk, ideel til cykelture og løbeture.

KLIK HERUNDER FOR AT FÅ MERE INFORMATION OM BOLIGERNE

TV/BREDBÅND
Ja
DEPOT/KÆLDERRUM
Ja
FESTLOKALE
Nej
HUSDYR
Ja
VASKERI
Nej
TERASSE / ALTAN
Ja
LADESTANDER
Nej
GARAGE / PARKERING
Ja/ Ja
HVIDEVARE
Ja
BEBOERDEMOKRATI
Alle har stemmeret

Tegningerne er ikke målfaste og kan være spejlvendte

AntalRumArealHuslejeIndskudPlantegning
4270 m25.48915.960Plantegning_90
4274 m25.52216.872Plantegning_90
6389 m26.73320.292Plantegning_90
4397 m27.60122.116Plantegning_90
24103 m28.06623.484Plantegning_90