Niels W. Gades Vej / Afdeling 82

Rummelige og lyse rækkehuse

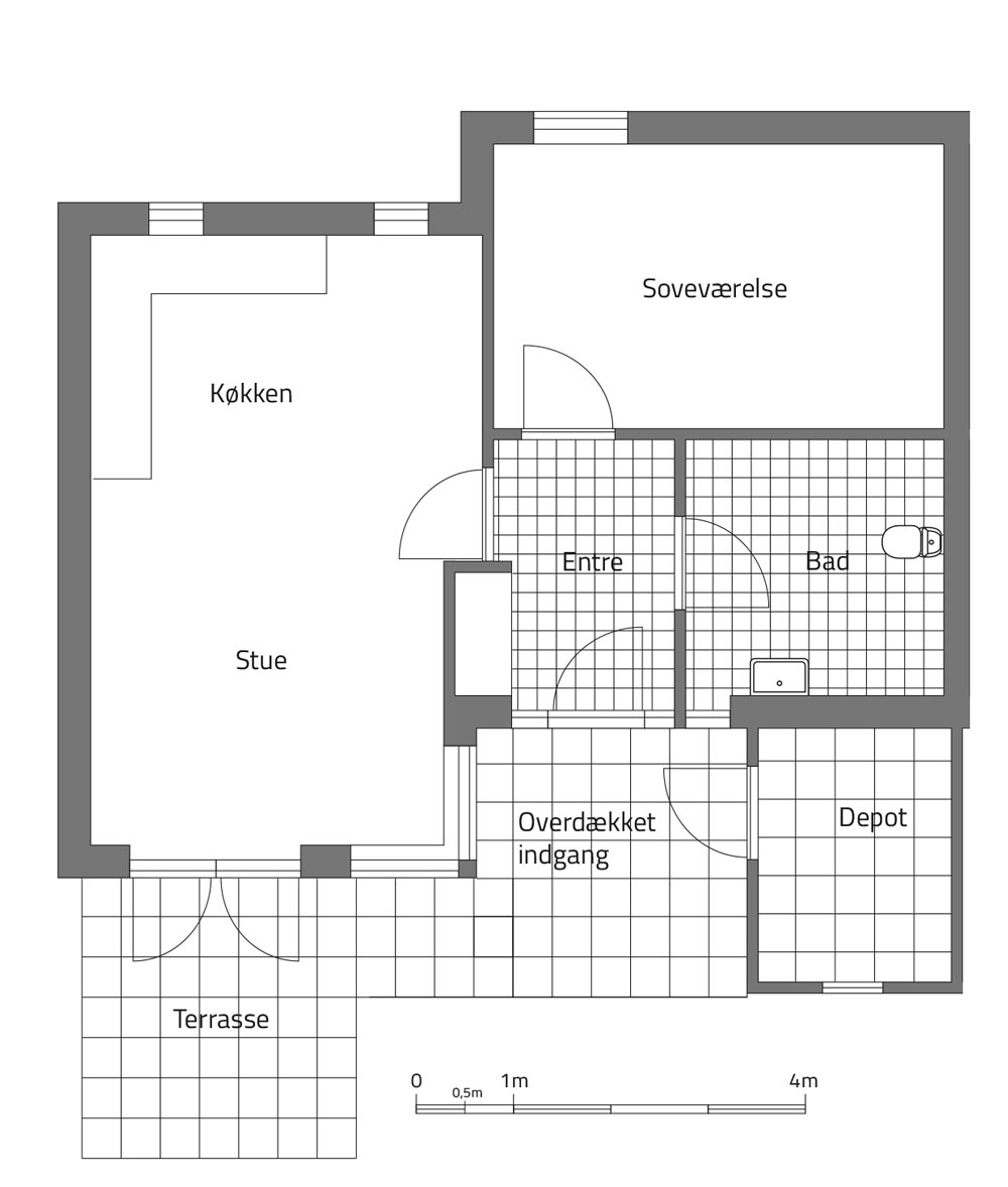
Boligerne er indrettet uden dørtrin og med brede døråbninger, hvilket giver en god og åben planløsning. Soveværelset har fire faste skabe og trægulve, mens stuen byder på store vinduer og udgang til en solrig terrasse. Det åbne køkken har egetræsskabe, lys bordplade, køleskab med frostboks, ovn og kogeplader. Badeværelset har hvide klinker og plads til opbevaring.

Afdelingen

Hyggeligt fællesskab i rolige omgivelser

De etplans rødstensrækkehuse fra 1998 ligger ca. 6 km fra Vejle i et fredeligt kvarter. Afdelingen har et fælleshus med tre gæsteværelser, grillområde og grønne fællesarealer. Der er også mulighed for at leje carport.

Nærområdet

Fred, natur og nærhed

Indkøb ligger ca. 500 meter fra boligerne, og stisystemer fører til legeplads, boldbane og en lille kirke. Aktivitetscenter ligger 1 km væk, og Vejle by med butikker, restauranter og kulturtilbud nås på få minutter.

Særlige kriterier

Boligerne er forbeholdt ansøgere over 50 år uden hjemmeboende børn.
Der opkræves ikke fleksibelt gebyr for disse boliger.

KLIK HERUNDER FOR AT FÅ MERE INFORMATION OM BOLIGERNE

TV/BREDBÅND
Ja
DEPOT/KÆLDERRUM
Ja
FESTLOKALE
Ja
HUSDYR
Ja
VASKERI
Nej
TERASSE / ALTAN
Ja
LADESTANDER
Nej
GARAGE / PARKERING
Ja / Ja
HVIDEVARE
Ja
BEBOERDEMOKRATI
Alle har stemmeret
AntalRumArealHuslejeIndskudPlantegning
1262 m2Fra 5.96213.597Plantegning_90
1262 m2Fra 5.96213.597Plantegning_90
1262 m2Fra 5.96213.597Plantegning_90
1262 m2Fra 5.96213.760Plantegning_90
3262 m2Fra 5.65414.532Plantegning_90
2262 m2Fra 5.65414.532Plantegning_90
1264 m2Fra 5.96213.597Plantegning_90
1264 m2Fra 5.96213.597Plantegning_90
1264 m2Fra 5.96213.597Plantegning_90
1264 m2Fra 5.96213.597Plantegning_90