Mølvangvej / Afdeling 51

Boligerne – praktisk indrettede familieboliger

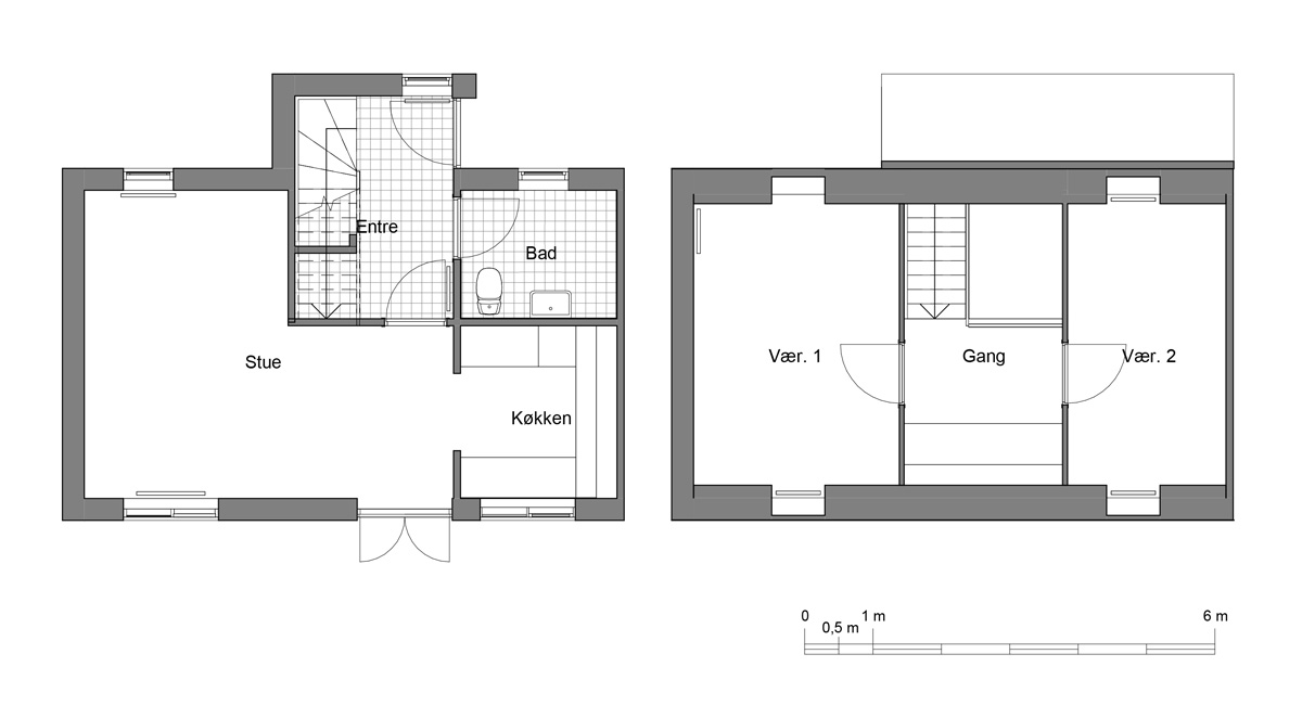
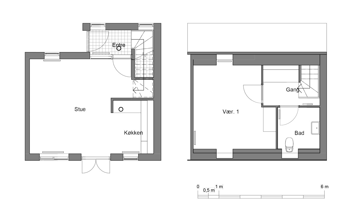
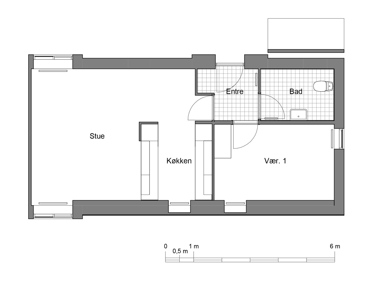
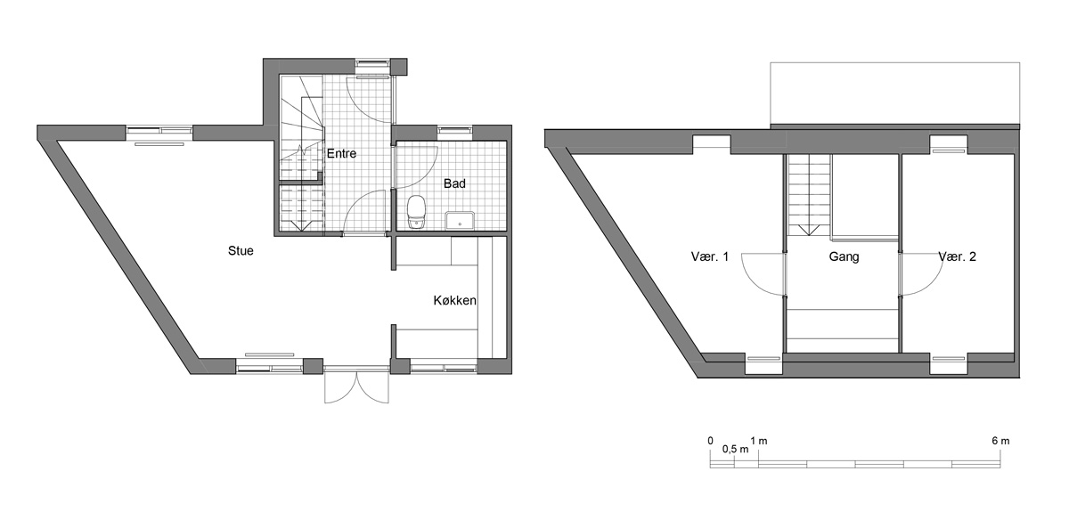
Boligerne byder velkommen med en klinkebelagt entré med åben garderobe. I boliger i to plan findes der faste skabe på reposen på første sal. Entréens moccafarvede klinker går igen i brusebadeværelset, som er indrettet med hvide fliser på væggene. Køkkenet er udført i bøgefiner og ligger i åben forbindelse med stuen. På Fårupvej 1D er køkkenet dog indrettet med hvide laminat­elementer med bøgekant. Fra stuen er der via dobbelte terrassedøre direkte udgang til haven. I stue og værelser er der flotte bøgeparketgulve. Boligerne på Mølvangvej 3A og 3C er uden dørtrin og fremstår handicapvenlige, mens Mølvangvej 3B og 3D har udvendige trapper.

Afdelingen – velfungerende fællesskab

Afdelingen består af rækkehuse i ét og to plan, opført fra 1976 og frem, beliggende i rolige boligområder cirka 1 km syd for centrum af Jelling. Bebyggelserne er opført i røde og gule sten og omgivet af velplejede grønne fællesarealer med legepladser, boldbaner, grill- og opholdsarealer samt fælles terrasser. Der er fælles parkeringspladser og mulighed for leje af carporte efter venteliste. Afdelingen råder desuden over fælleslokale og gæstelejlighed, som kan benyttes ved større arrangementer. Flere boliger har udsigt til sø, og ventilationsanlæg i dele af bebyggelsen sikrer et sundt og behageligt indeklima.

Nærområdet – tæt på natur og byliv

Du bor i den sydlige del af Jelling med kort afstand til både Fårup Sø, golfbane og de smukke skovområder i Jelling Skov. Byen byder på dagligvarebutikker, specialbutikker, skoler, institutioner, bibliotek, caféer og kulturtilbud. Et af områdets store trækplastre er Kongernes Jelling – et gratis oplevelsescenter for hele familien. Jelling Musikfestival afholdes hvert år i maj. Motorvejsnettet nås på cirka 20 minutter, og der er omkring 10 km til Vejle samt kort køreafstand til både Givskud Zoo og Legoland.

KLIK HERUNDER FOR AT FÅ MERE INFORMATION OM BOLIGERNE

TV/BREDBÅND
Ja
DEPOT/KÆLDERRUM
Ja
FESTLOKALE
Ja
HUSDYR
Ja
VASKERI
Nej
TERASSE / ALTAN
Ja
LADESTANDER
Nej
GARAGE / PARKERING
Ja/ Ja
HVIDEVARE
Ja, delvis
BEBOERDEMOKRATI
Alle har stemmeret

Tegningerne er ikke målfaste og kan være spejlvendte

AntalRumArealHuslejeIndskudPlantegning
2259 m25.06717.264Plantegning_90
2265 m25.41518.456Plantegning_90
1270 m24.89316.668Plantegning_90
1385 m26.53722.272Plantegning_90
1385 m26.53722.272Plantegning_90