Mejslingvej, Egelandvej, Starupvej, Bøgelund, Tørskindvej, Kirkevænget, Grindstedvej , Skolevænget / Afdeling 51

Skønne villaer med have og terrasse
Hyggelig etplansvilla’er  med egen garage, kælderrum, privat have og terrasse. Boligerne er lyse og funktionel med køkken i hvide elementer, køle-fryseskab, komfur, emhætte og mulighed for opvaskemaskine. Det er tilladt at holde ét husdyr.

KLIK HERUNDER FOR AT FÅ MERE INFORMATION OM BOLIGERNE

TV/BREDBÅND
Ja
DEPOT/KÆLDERRUM
Ja
FESTLOKALE
Nej
HUSDYR
Ja
VASKERI
Nej
TERASSE / ALTAN
Ja
LADESTANDER
Nej
GARAGE / PARKERING
Ja/ Ja
HVIDEVARE
Ja
BEBOERDEMOKRATI
Alle har stemmeret

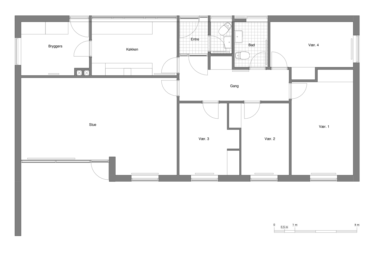
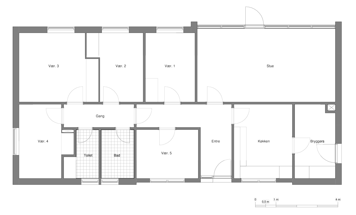
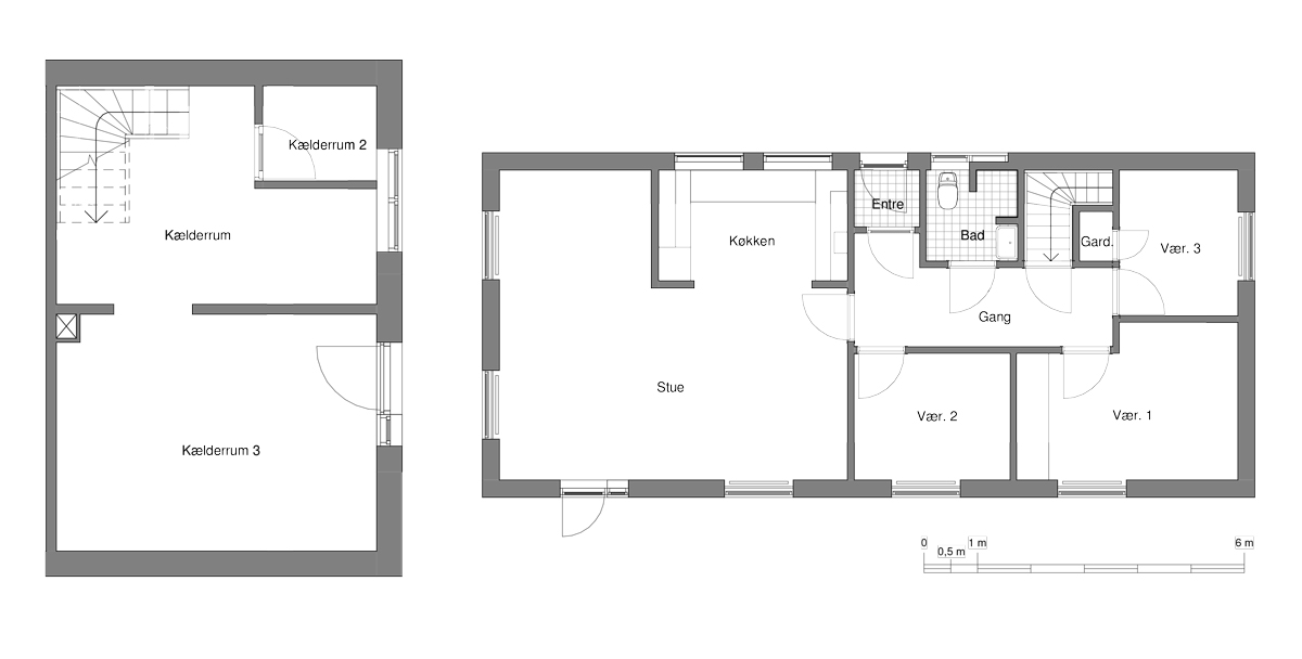
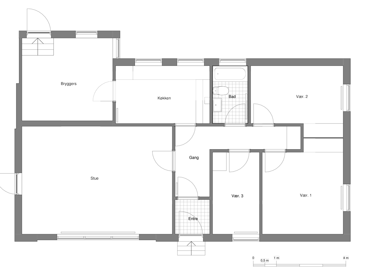
Tegningerne er ikke målfaste og kan være spejlvendte

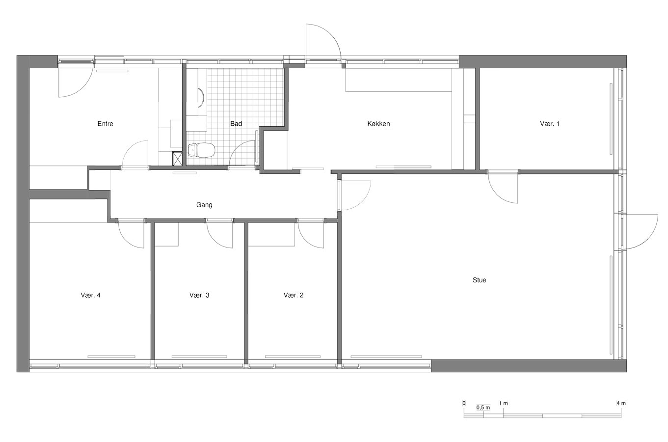
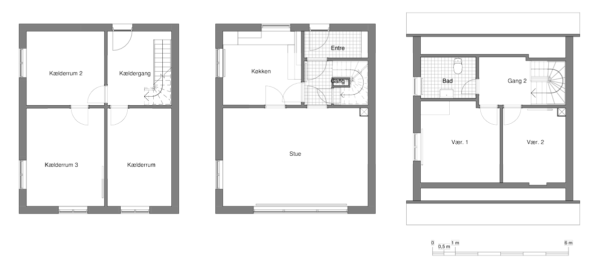
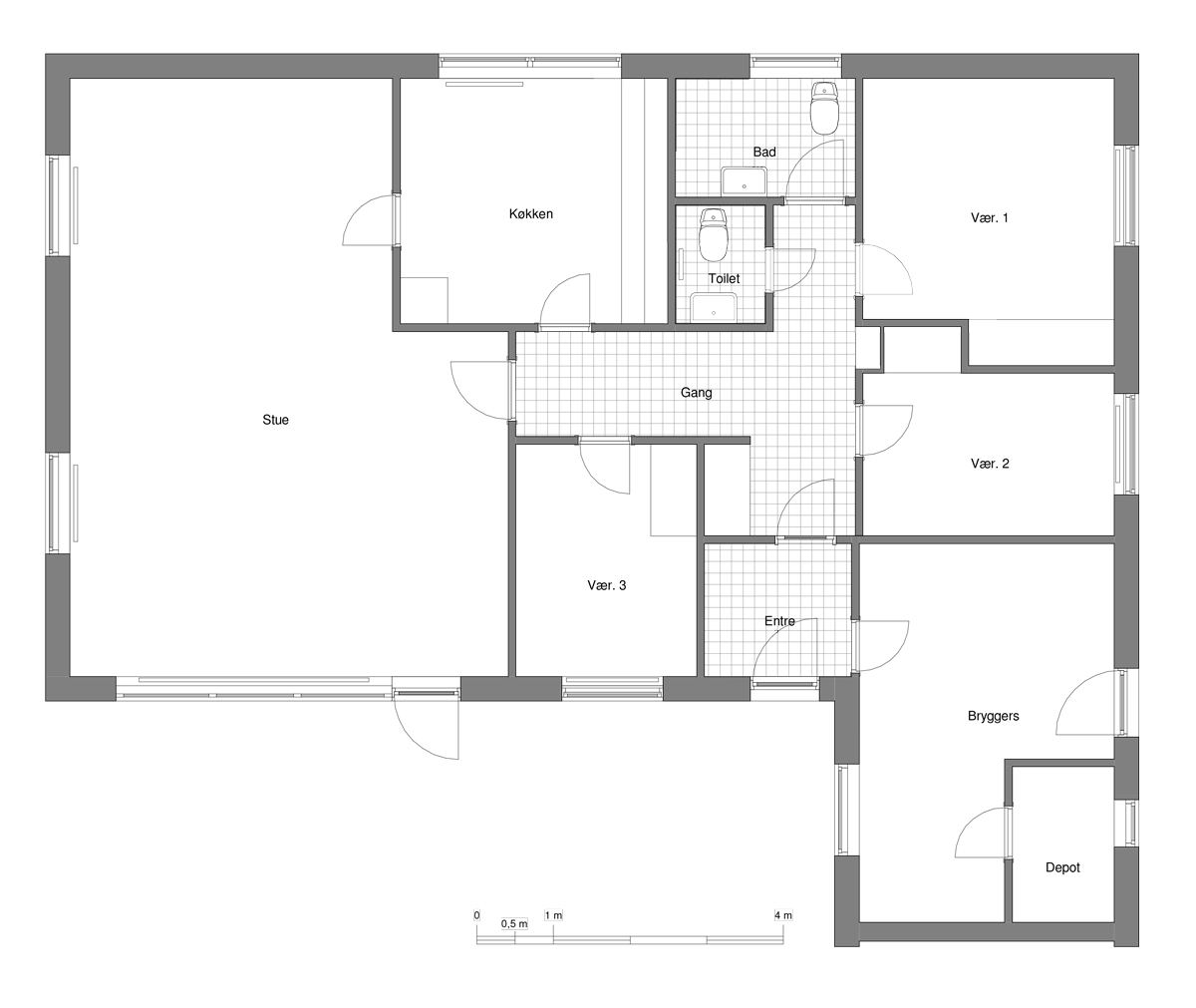
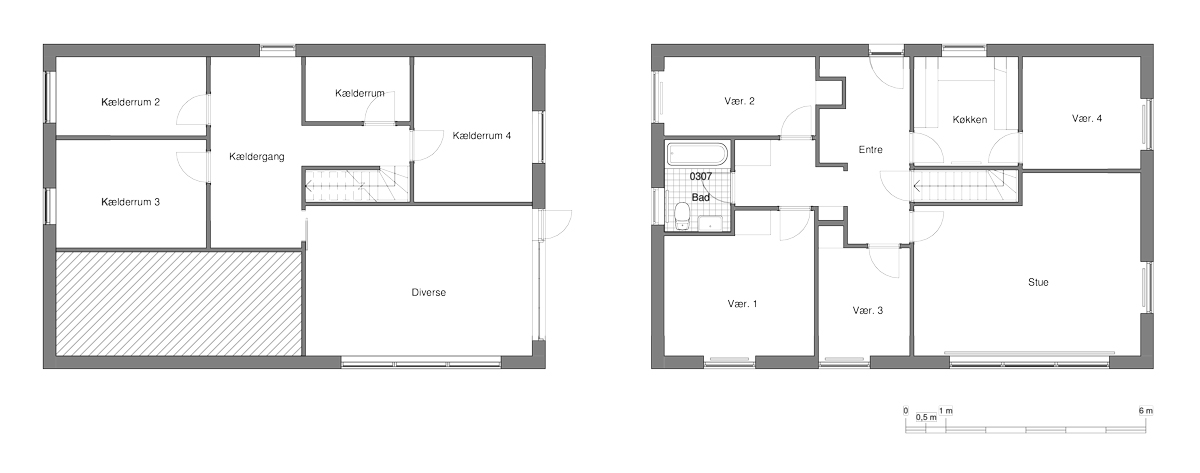
AntalRumArealHuslejeIndskudPlantegning
1 / Tørskindvej390 m26.74523.484Plantegning_90
1 / Mejslingvej6110 m27.87125.080Plantegning_90
1 / Skolevænget4110 m27.87125.080Plantegning_90
1 / Starupvej6122 m28.50927.816Plantegning_90
1 / Starupvej4123 m28.84928.044Plantegning_90
1 / Egelandvej5129 m28.48829.412Plantegning_90
1 / Bøgelund4131 m29.44529.868Plantegning_90
1 / Grindstedvej4132 m27.87130.096Plantegning_90
1 / Kirkevænget6149 m210.79633.972Plantegning_90