Majsvænget / Afdeling 51

Rækkehuse med have og terrasse
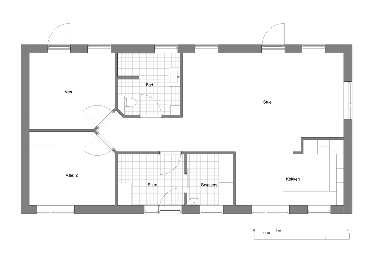
Etplansrækkehuse fra 1989 med bryggers (i de fleste boliger), eget skur, private terrasser og haver. Køkkener i bøgetræ med god skabsplads, vindue, køle-fryseskab, komfur, emhætte og plads til opvaskemaskine. Badeværelser med bruseområde, gulvvarme, vindue og indbyggede skabe. Én hund eller kat pr. lejemål er tilladt.

Nærområdet

Lille landsby mellem Kolding og Vejle
Ågård byder på rolige omgivelser, skole og dagligvarebutik i gåafstand. Aktivt foreningsliv med idrætshal, beachvolley og golf. Naturoplevelser i Føniksborg Skov og nem busforbindelse til Kolding og Vejle ca. 250 m fra boligerne.

KLIK HERUNDER FOR AT FÅ MERE INFORMATION OM BOLIGERNE

TV/BREDBÅND
Ja
DEPOT/KÆLDERRUM
Ja
FESTLOKALE
Nej
HUSDYR
Ja
VASKERI
Nej
TERASSE / ALTAN
Ja
LADESTANDER
Nej
GARAGE / PARKERING
Ja/ Ja
HVIDEVARE
Ja
BEBOERDEMOKRATI
Alle har stemmeret

Tegningerne er ikke målfaste og kan være spejlvendte

AntalRumArealHuslejeIndskudPlantegning
2256 m24.05812.676Plantegning_90
4268 m24.96815.504Plantegning_90
6383 m26.05718.924Plantegning_90
1396 m27.89810.422Plantegning_90