Kirkevej / Afdeling 51

Rummelige villalejligheder centralt i Egtved
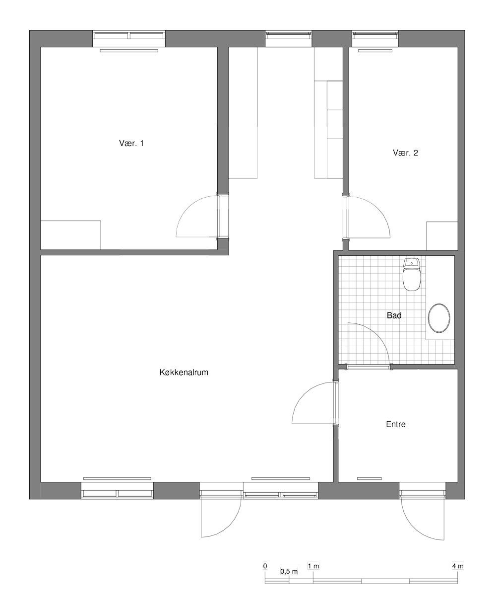
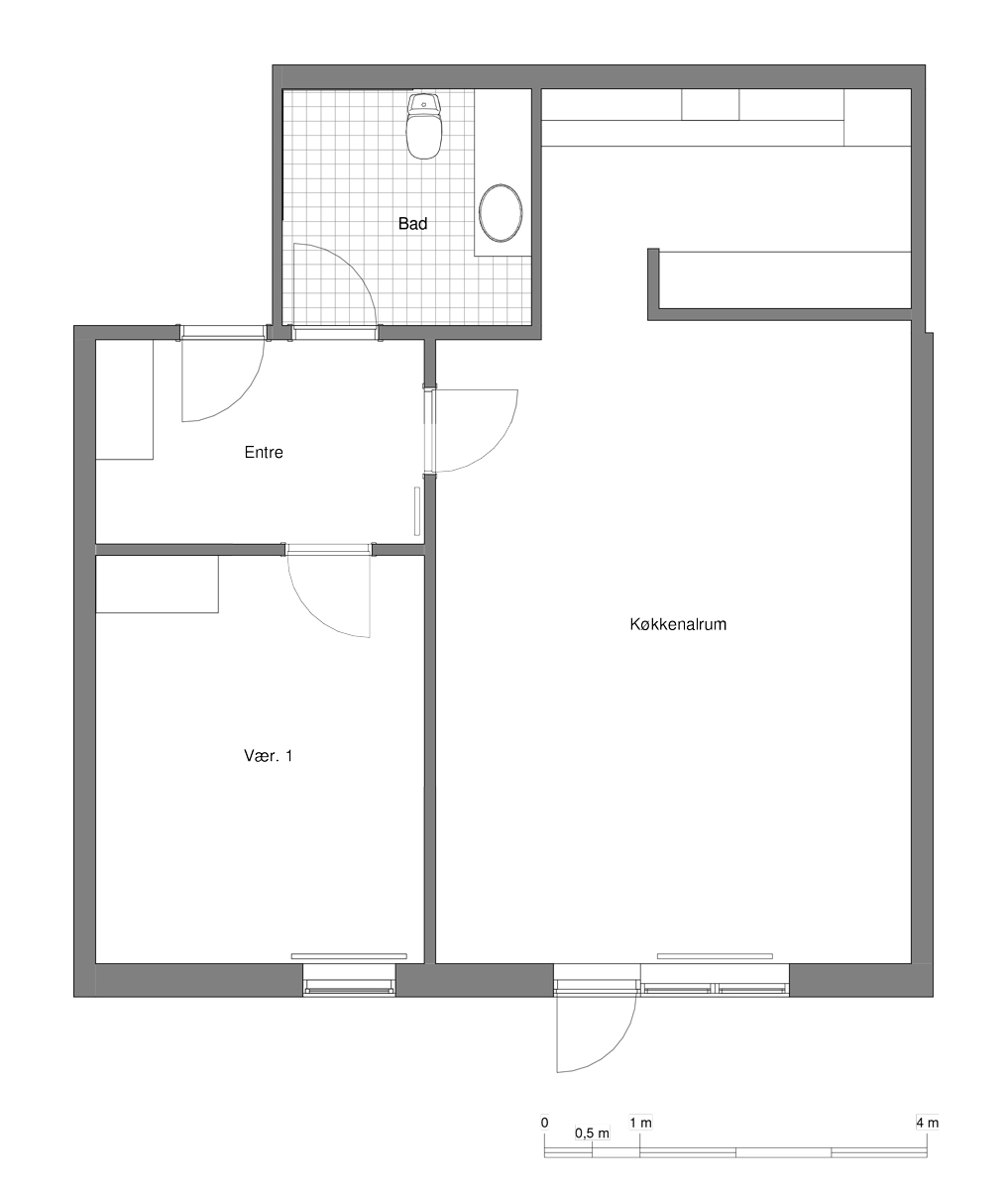
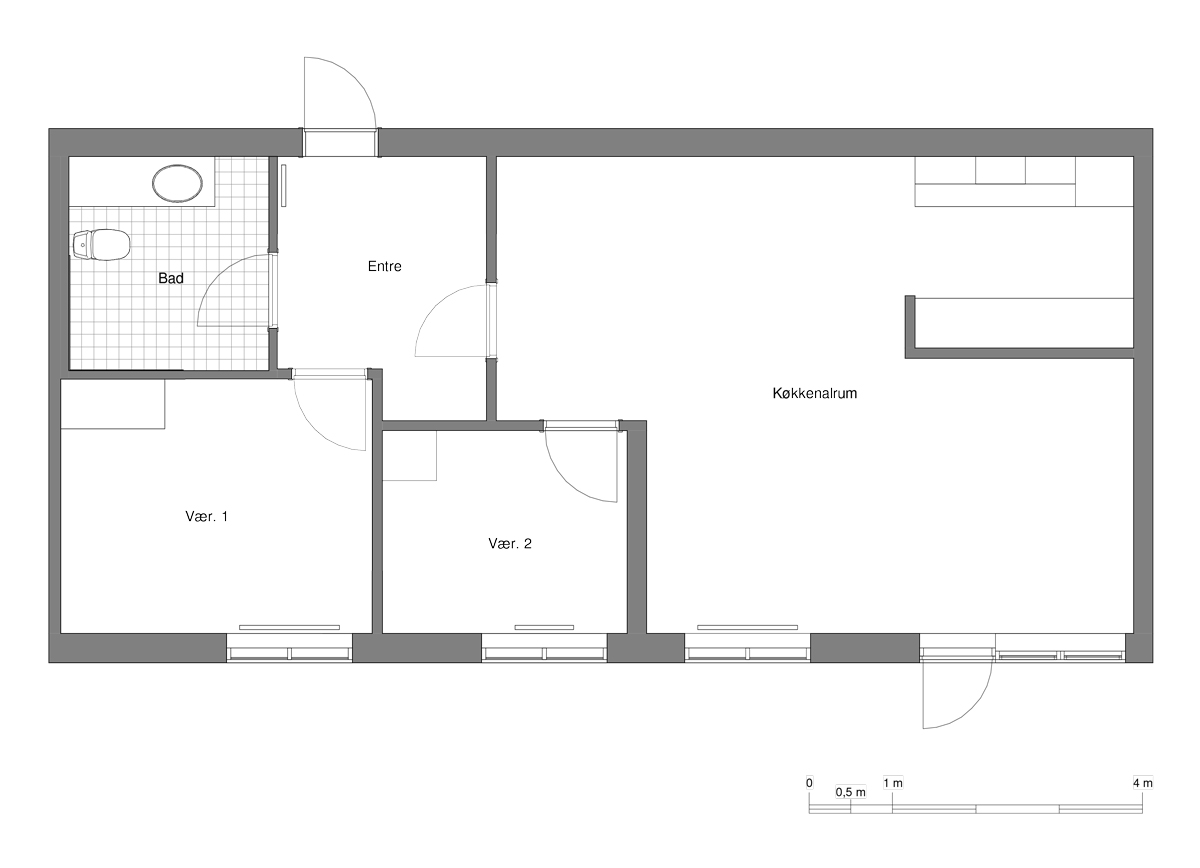
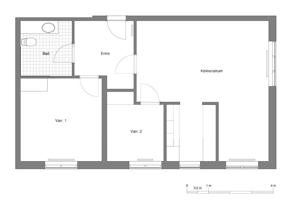
De rummelige etplansvillalejligheder på Kirkevej blev ombygget i 2006 og ligger centralt i Egtved. Boligerne har åbne køkkener med hvide elementer, bøgetræsgulve og plads til opvaskemaskine. Badeværelserne er lyse og indrettet med gulvvarme og bruseområde. Der medfølger kælderrum og indbyggede skabe, som giver gode opbevaringsmuligheder. Fra stuen er der udgang til egen terrasse, og det er tilladt at holde én hund eller én kat.

Nærområdet

Skøn by med aktiviteter for enhver
Egtved byder på gode indkøbsmuligheder, offentlig transport og et aktivt byliv. Naturen er tæt på med Egtved Skov ca. 1,5 km fra boligerne.

KLIK HERUNDER FOR AT FÅ MERE INFORMATION OM BOLIGERNE

TV/BREDBÅND
Ja
DEPOT/KÆLDERRUM
Ja
FESTLOKALE
Nej
HUSDYR
Ja
VASKERI
Nej
TERASSE / ALTAN
Ja
LADESTANDER
Nej
GARAGE / PARKERING
Ja/ Ja
HVIDEVARE
Ja
BEBOERDEMOKRATI
Alle har stemmeret

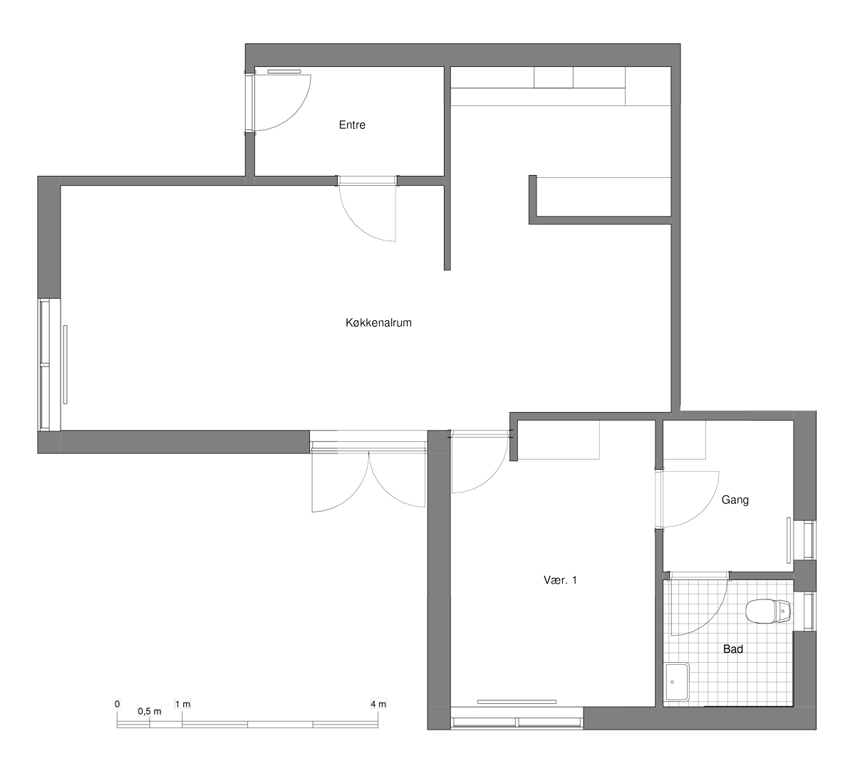
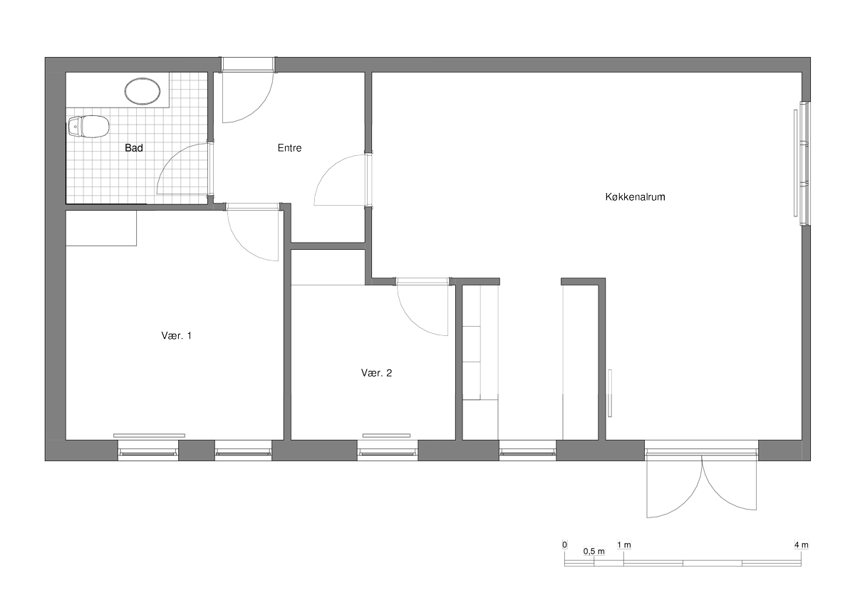
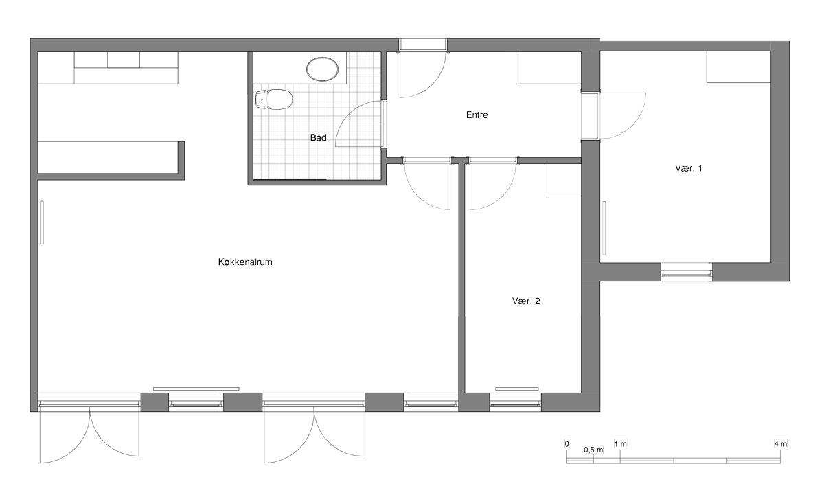
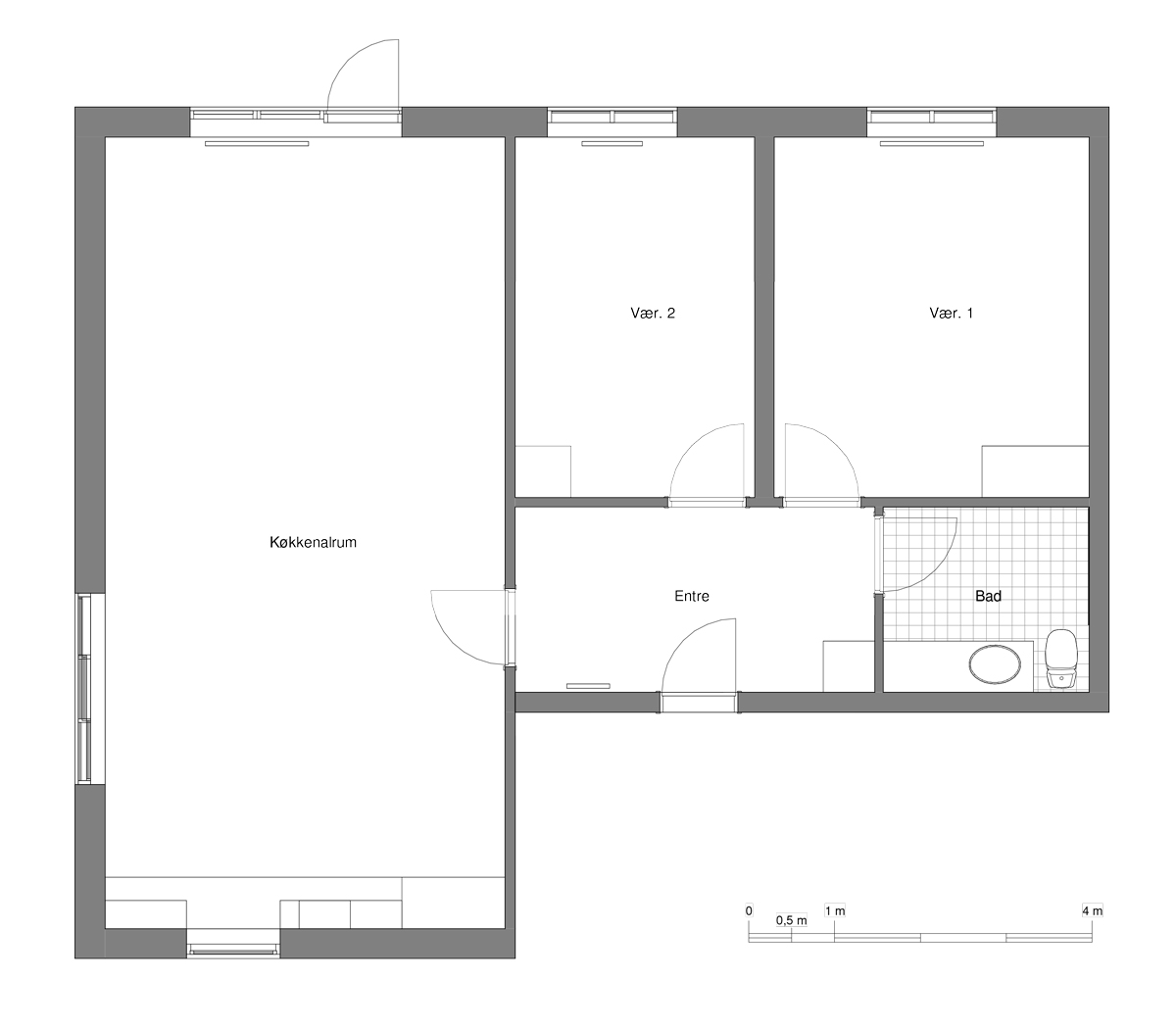
Tegningerne er ikke målfaste og kan være spejlvendte

AntalRumArealHuslejeIndskudPlantegning
1 / Parkvej3101 m28.66526.563Plantegning_90
23101 m28.66526.563Plantegning_90
13104 m28.88027.352Plantegning_90
13106 m29.02427.878Plantegning_90
13106 m29.02427.878Plantegning_90
23107 m29.09328.141Plantegning_90
13109 m29.24128.667Plantegning_90
13109 m29.24128.667Plantegning_90
AntalRumArealHuslejeIndskudPlantegning
1285 m27.52322.355Plantegning_90
1 / Parkvej286 m27.59022.618Plantegning_90
1290 m27.87823.670Plantegning_90
1 390 m27.87823.670Plantegning_90
1 292 m28.02224.196Plantegning_90
1 293 m28.09524.459Plantegning_90
1 293 m28.09524.459Plantegning_90
1 394 m28.16724.722Plantegning_90
1 396 m28.30725.248Plantegning_90
1 / Parkvej3101 m28.66526.563Plantegning_90