Jernbanevej / Afdeling 10

Lyse og energivenlige

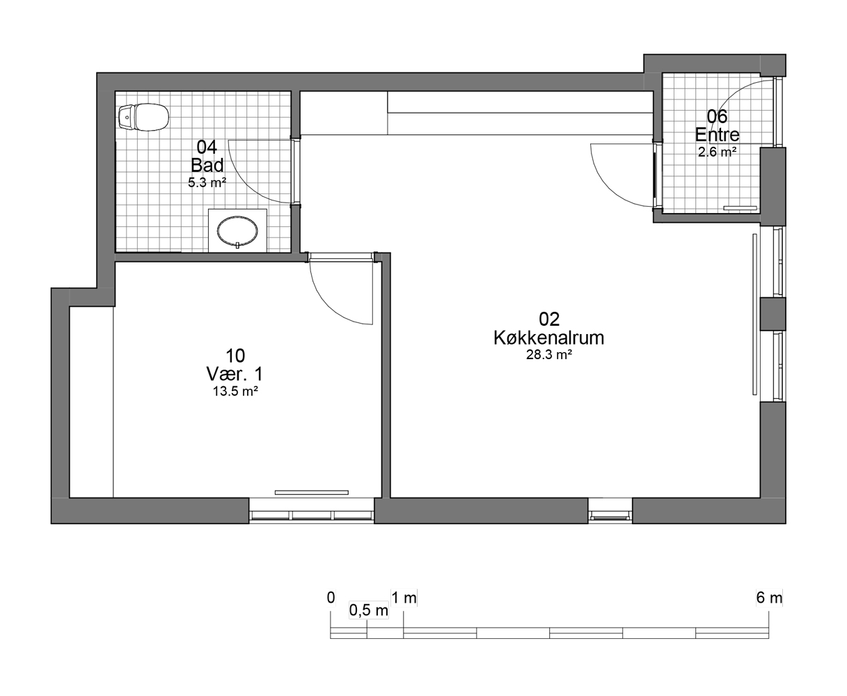
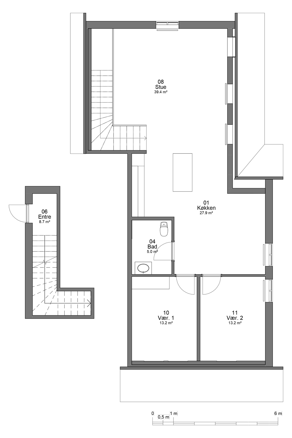
Boligerne er indrettet med åbent køkken i forbindelse med spiseplads og opholdsstue. Køkkenet er fra HTH og udstyret med Miele-hvidevarer, herunder komfur, emhætte og køl/frys samt installation til opvaskemaskine.

Der er gennemgående lakeret egetræsparket i stue, værelser og gang. Badeværelset har rå klinker på gulvet, hvide fliser i brusenichen samt plads og installation til vaskemaskine og kondenstørretumbler.

Lejlighederne har fibernet, antenne- og telefonstik samt adgang til depotrum i kælderen. Derudover er der fælles have og terrasse samt privat parkering.

Det tidligere Jelling Bibliotek

Den karakteristiske rødstensbygning er totalrenoveret med fokus på energieffektivitet. Her er blandt andet etableret individuelle ventilationsanlæg med varmegenvinding samt nye energivenlige døre og 3-lags vinduer.

Området

Jelling byder på et aktivt handelsliv og er kendt for sine vikingesten og historiske attraktioner. Byen ligger ca. 12 km nordvest for Vejle og har gode tog- og busforbindelser.

Som lejer i Jelling Boligselskab har du mulighed for at skrive dig på den interne venteliste til en familiebolig efter 2 års bopæl i en ungdomsbolig.

KLIK HERUNDER FOR AT FÅ MERE INFORMATION OM BOLIGERNE

TV/BREDBÅND
Ja
DEPOT/KÆLDERRUM
Ja
FESTLOKALE
Nej
HUSDYR
Ja
VASKERI
Nej
TERASSE / ALTAN
Ja
LADESTANDER
Nej
GARAGE / PARKERING
Nej / Ja
HVIDEVARE
Ja
BEBOERDEMOKRATI
Alle har stemmeret

Tegningerne er ikke målfaste og kan være spejlvendte

AntalRumArealHuslejeIndskudPlantegning
1260 m25.62422.378Plantegning_90
1384 m27.44831.329Plantegning_90
13112 m28.35241.772Plantegning_90