Irisvej / Afdeling 62

Boligerne på IRISVEJ
Étplansrækkehuse med skøn forhave

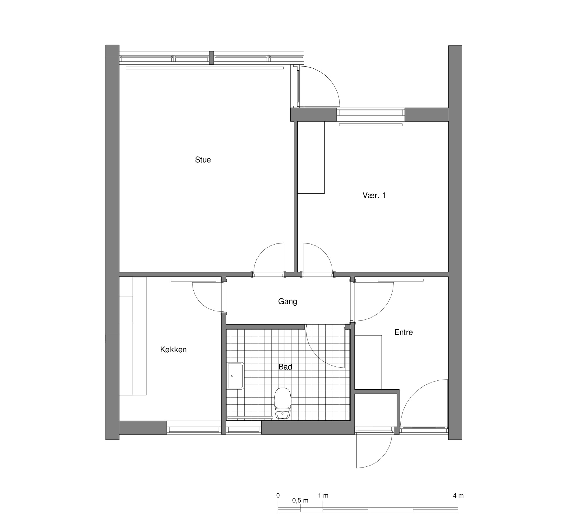
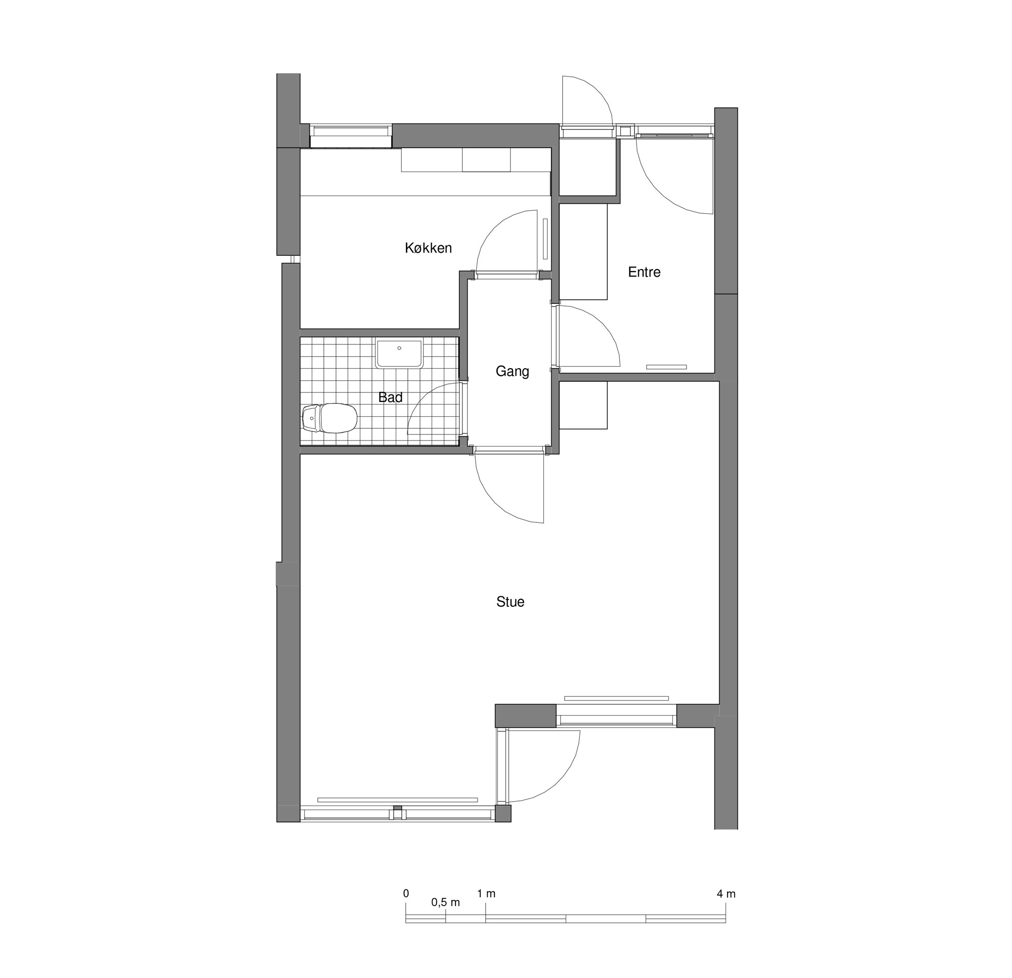
På Irisvej ligger charmerende étplansrækkehuse fra 1971, hvor forhaverne indbyder til blomsterkrukker og små caféborde. I år 2000 blev både køkkener og badeværelser renoveret med solide materialer.

Køkkenerne har emhætte, enten køle-fryseskab eller køleskab med frostboks, samt komfur eller indbygningsovn og kogeplader og god skabsplads. Badeværelserne er lyse, med bruseniche, gulvvarme og plads til et lille toiletskab. Boligerne har indbyggede skabe, der giver god opbevaringsplads. Udover den hyggelige forhave har boligerne også en terrasse, perfekt til sommermiddage.

Der er gode parkeringsmuligheder tæt på boligerne, og mulighed for at leje garage.


Nærområdet
Smukke omgivelser og gode faciliteter

Nærområdet byder på grønne stier og dejlige omgivelser. Skole ligger 1-2 km væk, mens daginstitutioner og sportsaktiviteter findes 100-800 meter fra boligerne. Indkøb ligger mellem 200 meter og 1 km væk.

Centrum har hyggelige butikker og en ti-stjernet restaurant, og Børkop Vandmølle er oplagt til en weekendudflugt. Der er gode offentlige transportmuligheder med busstoppested 50-200 meter væk og togstation ca. 1-2 km derfra. Vejle og Fredericia ligger kun 15 km væk, let tilgængeligt via motortrafikvejen 400 meter fra området, uden at der opleves støjgener.

KLIK HERUNDER FOR AT FÅ MERE INFORMATION OM BOLIGERNE

TV/BREDBÅND
Ja
DEPOT/KÆLDERRUM
Ja
FESTLOKALE
Ja
HUSDYR
Ja
VASKERI
Ja
TERASSE / ALTAN
Ja
LADESTANDER
Nej
GARAGE / PARKERING
Nej / Ja
HVIDEVARE
Ja
BEBOERDEMOKRATI
Alle har stemmeret
AntalRumArealHuslejeIndskudPlantegning
5146 m2Fra 4.49010.672Plantegning_90
13264 m2Fra 6.28514.848Plantegning_90
3392 m2Fra 8.97321.344Plantegning_90