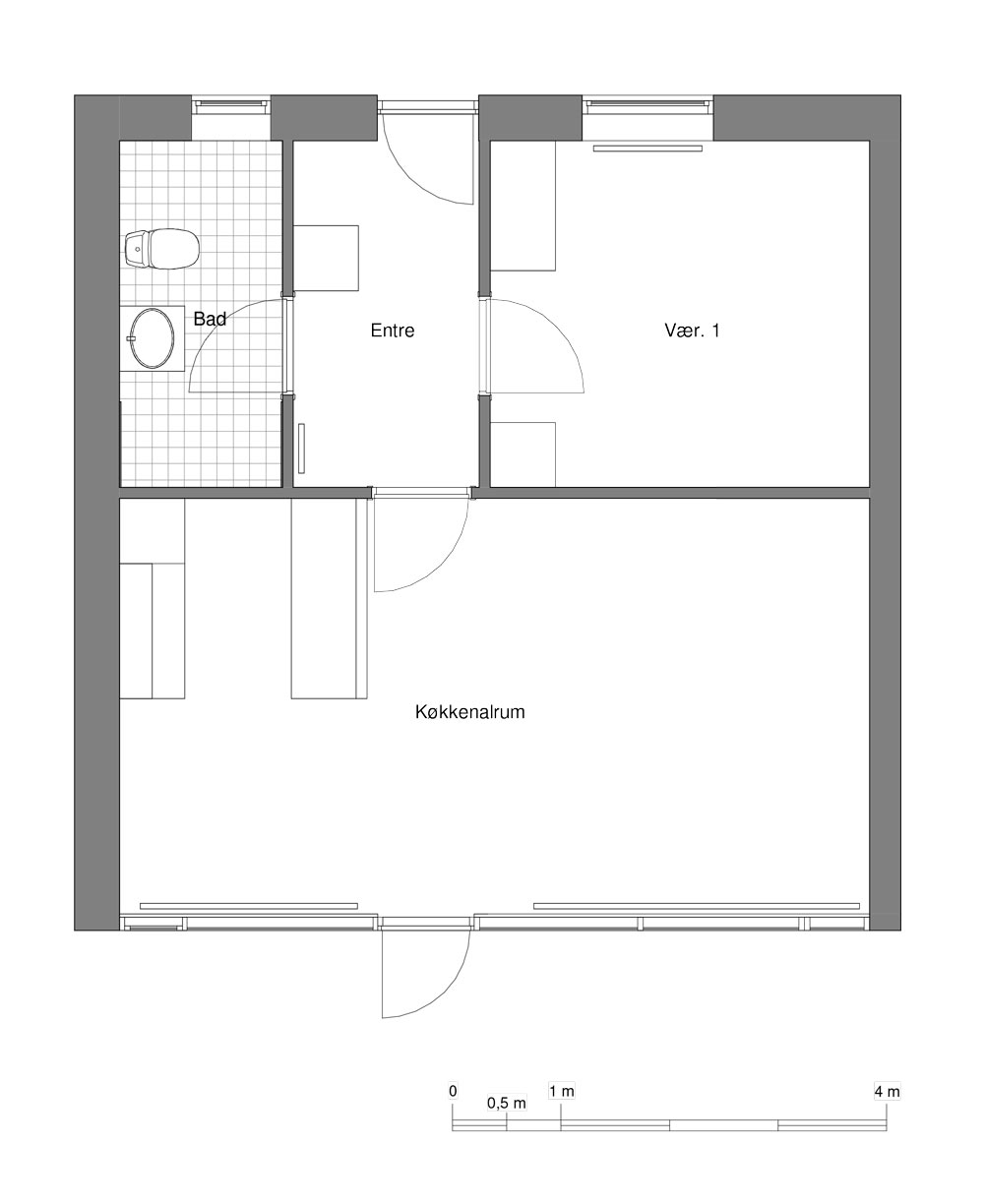
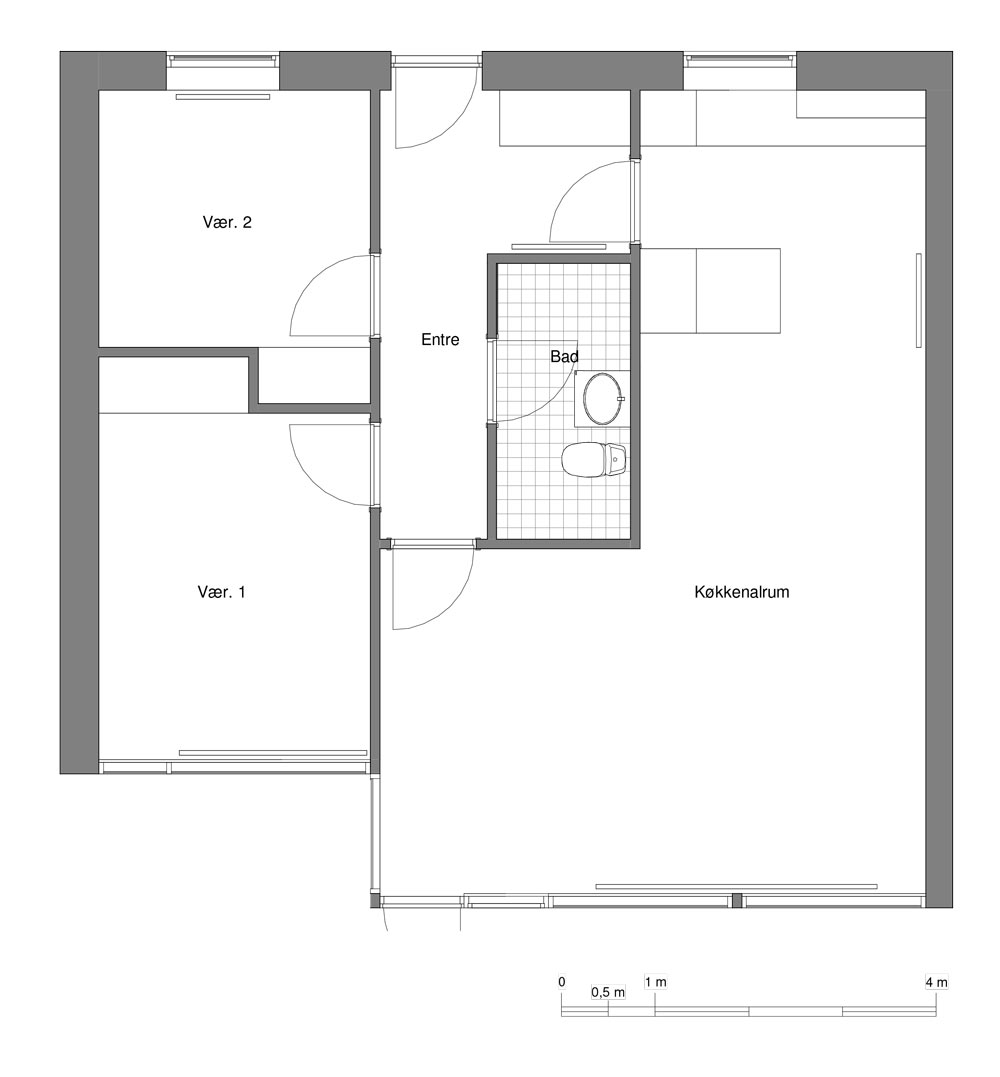
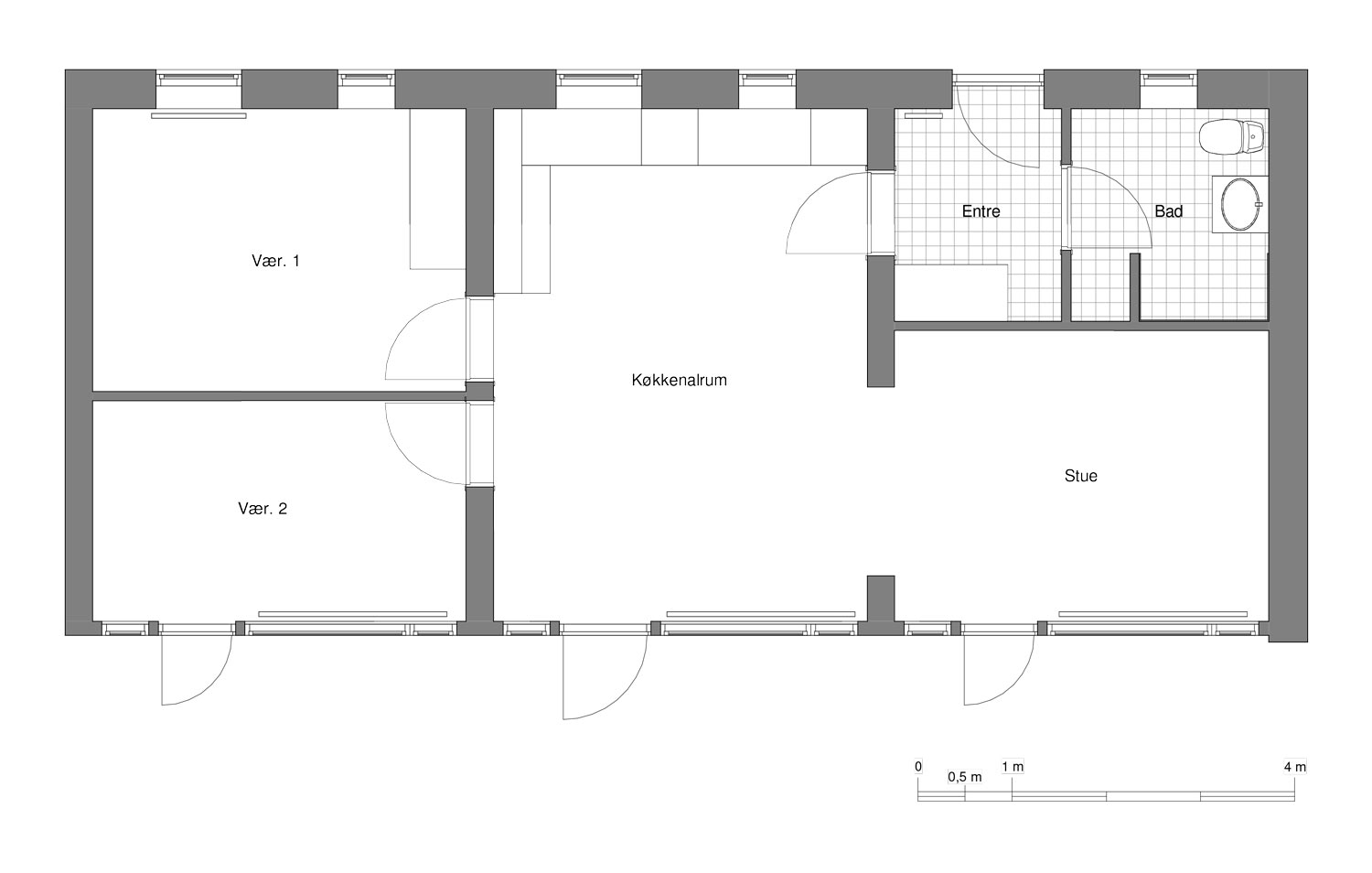
Rækkehuse i ét plan med saddeltag, beliggende i udkanten af Vandel. Bebyggelsen består af 17 boliger fordelt på 5 længer. Alle boliger har indgang fra internt stisystem, eget skur ved indgangen samt privat, lukket have med flisebelagt terrasse. Der er privat parkeringsplads, og enkelte boliger har carport. Bebyggelsen er udvendigt totalrenoveret og indvendigt delvist renoveret i 2018 med nye køkkener og badeværelser.
KLIK HERUNDER FOR AT FÅ MERE INFORMATION OM BOLIGERNE
Tegningerne er ikke målfaste og kan være spejlvendte


