Emil Reesens Vej / Afdeling 82

Rummelige rækkehuse med skønt lysindfald

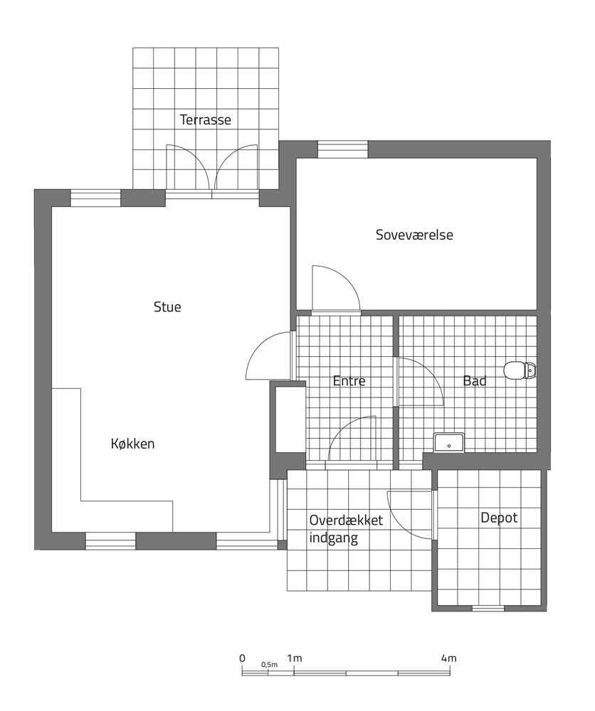
Boligerne er lyse og indrettet uden dørtrin, hvilket giver god plads og tilgængelighed. Soveværelset har fire faste skabe og trægulve. Stuen har store vinduespartier og udgang til en dejlig terrasse. Køkkenet er åbent og udstyret med egetræsskabe, lys bordplade, køleskab med frostboks, ovn og kogeplader. Badeværelset har hvide klinker og plads til opbevaring.

Afdelingen

Hyggelige rækkehuse med fællesskab

De rødstens rækkehuse fra 1998 ligger i rolige omgivelser ca. 6 km fra Vejle. Afdelingen har fælleshus med tre gæsteværelser, grillområde og mulighed for at leje carport. Grønne fællesarealer giver plads til samvær og udendørshygge.

Nærområdet

Fredeligt og naturskønt

Indkøb ligger kun 500 meter væk, og stisystemet fører gennem grønne omgivelser til legeplads, boldbane og kirke. Aktivitetscenteret 1 km fra boligerne tilbyder tilbud for både unge og ældre, mens Vejle centrum med kultur, shopping og spisesteder ligger kun 6 km væk.

KLIK HERUNDER FOR AT FÅ MERE INFORMATION OM BOLIGERNE

TV/BREDBÅND
Ja
DEPOT/KÆLDERRUM
Ja
FESTLOKALE
Ja
HUSDYR
Ja
VASKERI
Nej
TERASSE / ALTAN
Ja
LADESTANDER
Nej
GARAGE / PARKERING
Ja / Ja
HVIDEVARE
Ja
BEBOERDEMOKRATI
Alle har stemmeret
AntalRumArealHuslejeIndskudPlantegning
1268 m2Fra 5.99013.667Plantegning_90
1268 m2Fra 5.99013.831Plantegning_90
1386 m2Fra 7.26917.615Plantegning_90
2387 m2Fra 7.26917.615Plantegning_90
2387 m2Fra 7.26917.615Plantegning_90
1393 m2Fra 7.65718.831Plantegning_90
3393 m2Fra 7.65718.831Plantegning_90
1499 m2Fra 8.05320.288Plantegning_90
2499 m2Fra 8.05320.288Plantegning_90