Atriumhaven / Afdeling 25

Moderne og lyse boliger med terrasse

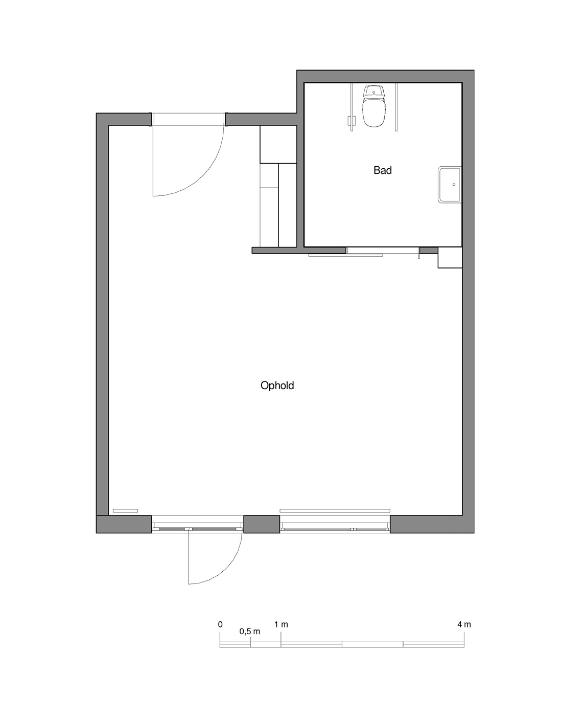
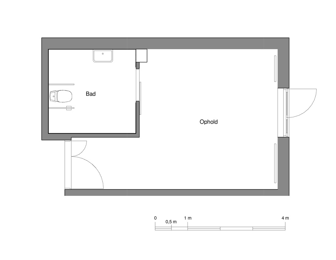
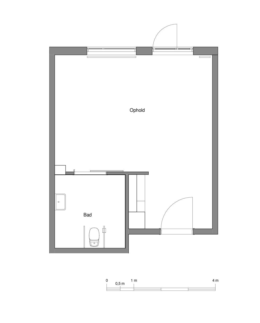
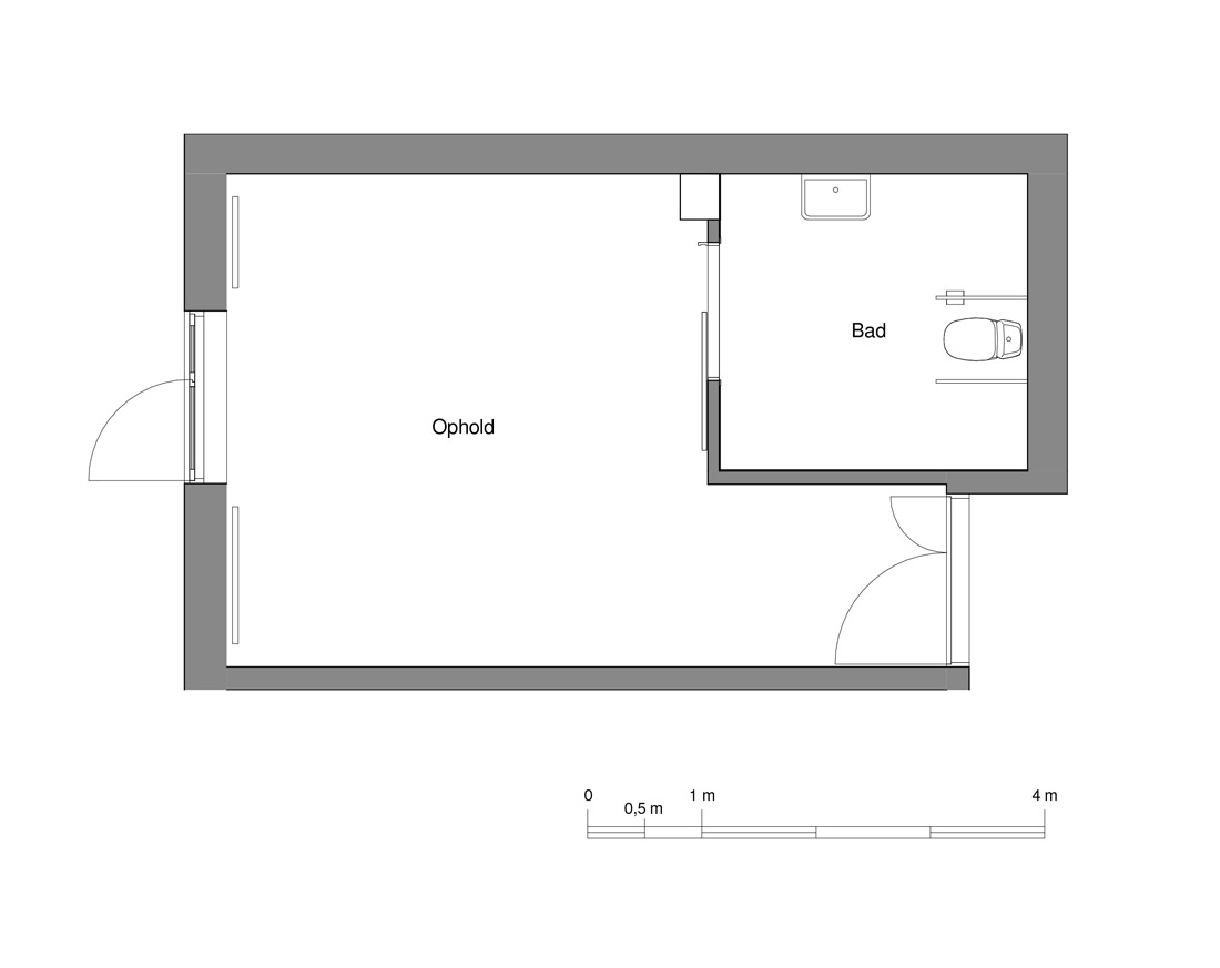
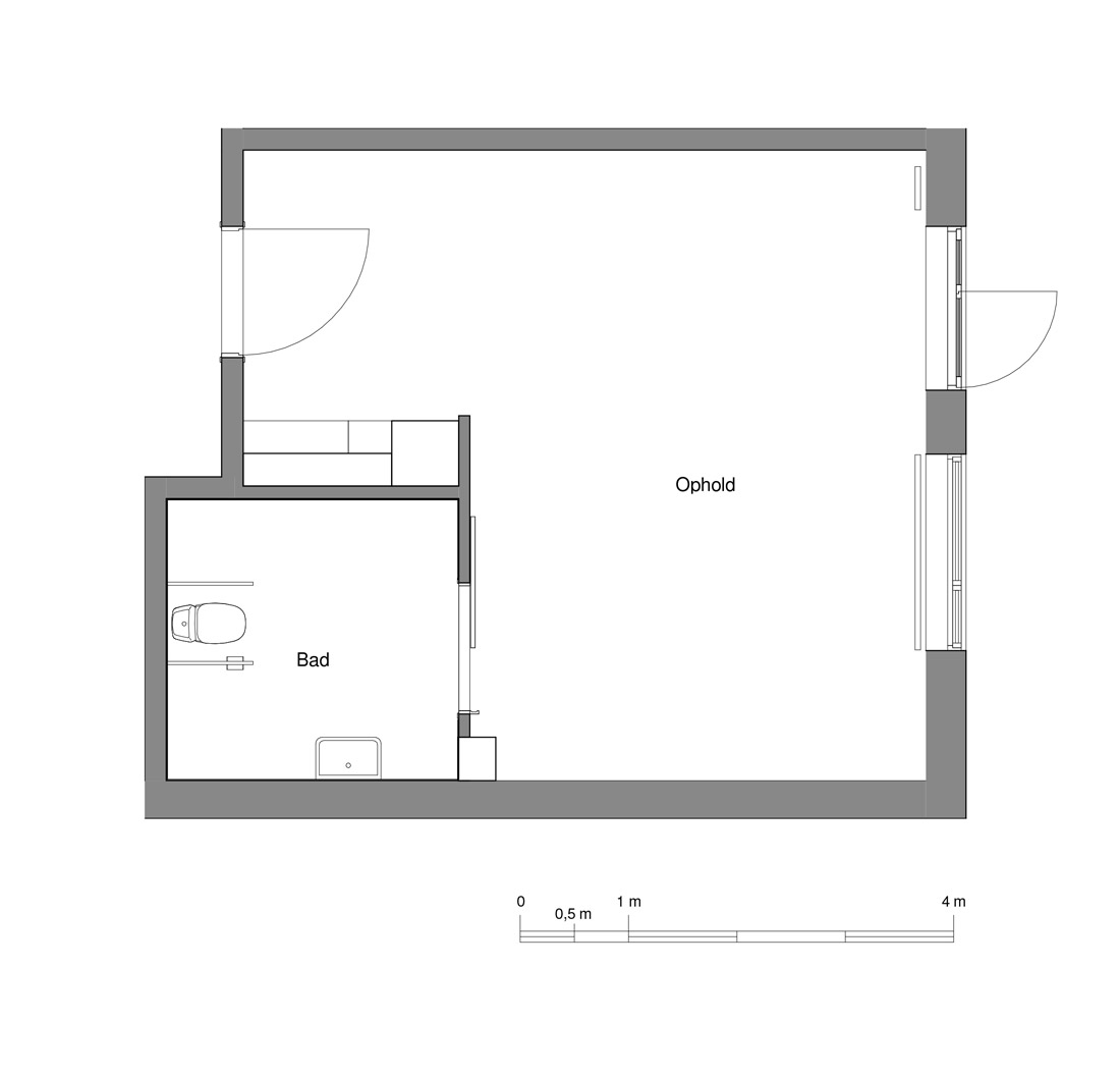
Boligerne har funktionelle tekøkkener med god skabsplads, hvide låger med bøgekant, køleskab og grålakeret bordplade. Badeværelserne har hvide fliser, linoleumsgulv, gulvvarme og justerbar håndvask.

Stuerne har stort gavlvindue, som giver et skønt lysindfald, og direkte udgang til egen lille terrasse. Hver bolig har desuden god opbevaringsplads med flytbare skabe, der også kan fungere som rumdelere.

Nærområdet

– Natur, sansehave og hyggeligt nærmiljø

Området byder på stisystemer, en lille springvandsplads og sansehave med blomster og urter. Brejning Havn og lokale butikker og restauranter ligger i gåafstand, og der er både busstoppested og indkøbsmuligheder tæt på.

KLIK HERUNDER FOR AT FÅ MERE INFORMATION OM BOLIGERNE

TV/BREDBÅND
Ja
DEPOT/KÆLDERRUM
Nej
FESTLOKALE
Nej
HUSDYR
Ja
VASKERI
Ja
TERASSE / ALTAN
Ja
LADESTANDER
Nej
GARAGE / PARKERING
Nej / Ja
HVIDEVARE
Nej
ELEVATOR
Nej
BEBOERDEMOKRATI
Alle har stemmeret
AntalRumArealHuslejeIndskudPlantegning
1155 m2Plantegning_90
1155 m2Plantegning_90
7165 m2Plantegning_90
8165 m2Plantegning_90
1165 m2Plantegning_90
10165 m2Plantegning_90
8165 m2Plantegning_90
1165 m2Plantegning_90
1165 m2Plantegning_90
2165 m2Plantegning_90