Åhaven 1-7 / Afdeling 54
Hyggelige rækkehuse nær skov og by
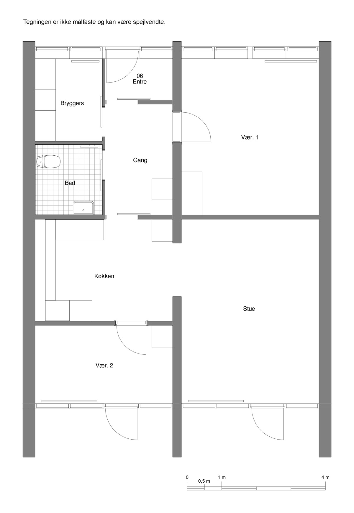
Rækkehusene har lyse og indbydende rum med pæne trægulve. Det flotte og velholdte HTH køkken fra 2006 er med hvide køkkenelementer, komfur, emhætte og køle-fryseskabe. Fra køkkenet er der åben forbindelse til stuen, hvorfra der er udgang til terrassen og haven. Der er ligeledes udgang fra et af værelserne. Vinduerne ud mod haven samt terrassedøren blev udskiftet i 2012. Badeværelset er med behagelig gulvvarme, brusebad og toilet. I bryggerset er der plads til både en vaskemaskine og en kondenstørretumbler.
Forbrug: Varme opkræves via Domea.dk som et månedligt a conto beløb. El afregnes direkte med forsyningsselskabet. Vand er inkluderet i lejen.
Nærområdet




